上海装潢网APP
为您的装修保驾护航
APP下载
后退
首页
APP
菜单
我要装修
我要投诉
我要监理
合同下载
报价下载
建材选购
装修公司
工地播报
新闻中心
个人中心
已完工
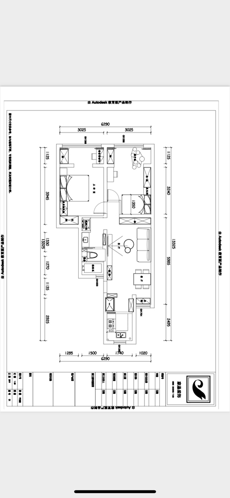
上海宝山区住宅公寓-二房72平米6.6万元
浏览量:
585
我要预约
房屋信息
业主信息:
侯先生
预算金额:
住宅公寓-二房
/
半包
/
72㎡
/
6.6万元
房屋地址:
宝山区大华路***弄
装修工期:
2023-05-18 ~ 2023-08-18
工地编号:
230427846
装修公司
上海家晶装饰工程有限公司
联系人:
孙大四
董事
电 话:
400-118-8580
口碑值:
768
排名:135
参与人员
官方客服
装潢网
侯先生
业主
上海家晶装饰工程有限公司
装修公司
李承红
设计师
胡小云
监理
何展志
工程经理
小徐
项目经理
工地播报
竣工阶段
上海家晶装饰工程有限公司
[装修公司]
2024-01-13
在
APP
:
今天在两方专业监理验收下今天交房了,业主也出去旅游空关了一段时间,慢工出细活,整体效果很不错,全屋定制家具,断桥窗户。
泥木阶段
上海家晶装饰工程有限公司
[装修公司]
2023-09-02
在
APP
:
因业主出去旅游了一段时间,工地暂停了半个月,业主回来后,泥木继续进行,客厅简单的走边吊顶,业主喜欢简约的风格,所有没有过多的花哨的造型,瓷砖按标准的规格及工艺贴好了,我们预约了装潢网这边的监理及公司的监理去现场一项项检验,墙面瓷砖的平整度,是否有空鼓的情况,监理都认真负责的一块块检查,还有吊顶的平整度等都一一核验
上海家晶装饰工程有限公司
[装修公司]
2023-08-05
在
APP
:
工人干的活很是仔细。工长也非常的负责人。进度也拉的很快,业主中途出去旅游了半个月,让停工,等业主回来了过后在施工。现在业主回来了,工地进入正常的状态。很快就能泥木验收了。
水电阶段
上海家晶装饰工程有限公司
[装修公司]
2023-06-20
在
APP
:
拆改阶段
上海家晶装饰工程有限公司
[装修公司]
2023-06-01
在
APP
:
拆旧已经结束,本案例是二手房翻新,拆除一个礼拜,所有墙面瓷砖铲除到水泥,木制品全部拆除完成了,接下来开始定位水电
准备阶段
上海家晶装饰工程有限公司
[装修公司]
2023-05-10
在
APP
:
文华苑 侯先生这套两室两厅的房子我们沟通了近两个月的时间,最终确定了半包的合同,候先生为人处理都是非常仔细和细心的,我们也经的得候先生的考验,[呲牙],现在已经在为开工做准备啦
官方客服
[装潢网]
2023-04-27
在
电脑端
:
业主侯先生的装修工地已成功创建,施工方为上海家晶装饰工程有限公司,请及时补充参与人员,并定时播报工地进展。如有疑问请拨打:400-118-8580
业主评价
施工播报