上海装潢网APP
为您的装修保驾护航
APP下载
后退
首页
APP
菜单
我要装修
我要投诉
我要监理
合同下载
报价下载
建材选购
装修公司
工地播报
新闻中心
个人中心
已完工
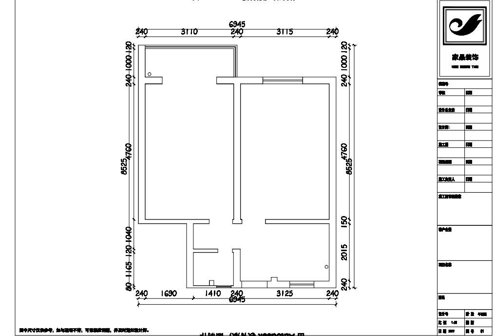
上海浦东新区住宅公寓-小户型53平米11万
浏览量:
768
我要预约
房屋信息
业主信息:
程先生
预算金额:
两房
/
半包
/
53㎡
/
11万元
房屋地址:
浦东新区成山路**弄***号***室
装修工期:
2023-04-20 ~ 2023-08-20
工地编号:
230417060
装修公司
上海家晶装饰工程有限公司
联系人:
孙大四
董事
电 话:
400-118-8580
口碑值:
768
排名:135
参与人员
官方客服
装潢网
程先生
业主
上海家晶装饰工程有限公司
装修公司
何展志
工程经理
胡小云
监理
徐忠琳
客服人员
赵越
设计师
王守兵
监理
工地播报
竣工阶段
官方客服
[装潢网]
2023-08-05
在
电脑端
:
工地状态设置为:已完工
上海家晶装饰工程有限公司
[装修公司]
2023-08-05
在
APP
:
竣工了附上一张现场视频。
网站点评:
一般
以后视频拍摄手机要横着拍,而且需要一边拍摄一边阐述怎么经过?这样其他装修业主才能看懂?装饰企业需要重视播报这细节性问题。
上海家晶装饰工程有限公司
[装修公司]
2023-08-05
在
APP
:
竣工验收啦,业主很细心。工长做的活也可以看得到,装潢网也非常上心,每个节点都很关注,还会不定期到工地上巡查。有一点点小问题马上整改。完美交付啦。
泥木阶段
上海家晶装饰工程有限公司
[装修公司]
2023-06-10
在
APP
:
今天上海装潢网人民监理员监理老师到了施工现场和我们公司的监理,项目经理,业主一起来验收泥工及木工,瓦工的瓷砖对缝,平整度空鼓率等,都是层层把关的,木工的柜子封边处理,边角处理,板材兔宝宝E0级,材料到场时都让业主过来验收过才做的,接下来要进入油漆阶段了
上海家晶装饰工程有限公司
[装修公司]
2023-05-30
在
APP
:
因房龄比较老,顶面是预制板结构,所有地面我们处理的时候全屋刷了三遍防水,防止地面找平和贴砖的时候渗水到楼下,所有瓷砖都对缝,横屏竖直,窗户都已经安装完毕,断桥双层钢化玻璃隔音隔热比较好
水电阶段
上海家晶装饰工程有限公司
[装修公司]
2023-05-11
在
手机端
:
该工地水电结束,三方完成验收。工地干净整洁。水走顶,工艺细节处理的很完美。强弱电交界处都有屏蔽处理。水电走向清晰明朗。方便后期维护。装潢网的老师们现场验收指导的,很专业
准备阶段
上海家晶装饰工程有限公司
[装修公司]
2023-04-21
在
手机端
:
本工地于2023年4月20号上午10点28分吉时准时开工了。设计师现场和项目经理,业主,监理交接了拆旧事宜。现场一一核实尺寸。做到准确无误。监理也在现场交代拆旧注意事项。一丝不苟,方能成就完美
网站点评:
优秀
很好!业主把家交给你们,一份信任,十分责任是我们必须要做到实处!
上海家晶装饰工程有限公司
[装修公司]
2023-04-17
在
手机端
:
本工地于04.16签订施工合同,邱老师细心负责的为客户详细讲解了预算及注意事项和预算的审核后意见,我司于04.20进行现场拆旧交底,交底后等物业装修手续审核完毕,我司拆旧团队进入进行拆旧项目,后期每一步的流程及工艺都会在第三方监理的把控及我司监理的把控下完美进行,如果现场有需要沟通,我司工程部会积极跟进,大家合作争取完美落地
官方客服
[装潢网]
2023-04-17
在
电脑端
:
业主程先生的装修工地已成功创建,施工方为上海家晶装饰工程有限公司,请及时补充参与人员,并定时播报工地进展。如有疑问请拨打:400-118-8580
业主评价
施工播报