上海装潢网APP
为您的装修保驾护航
APP下载
后退
首页
APP
菜单
我要装修
我要投诉
我要监理
合同下载
报价下载
建材选购
装修公司
工地播报
新闻中心
个人中心
已完工
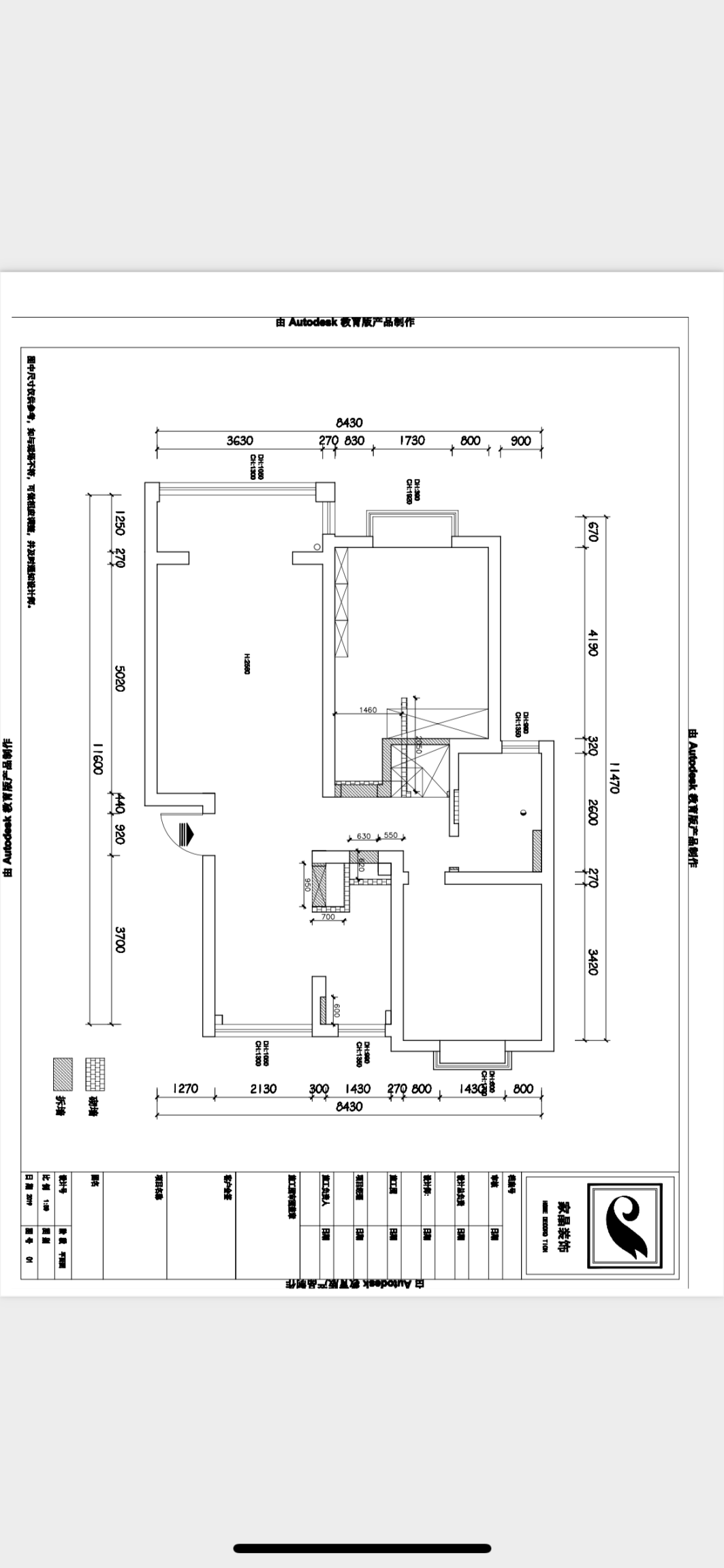
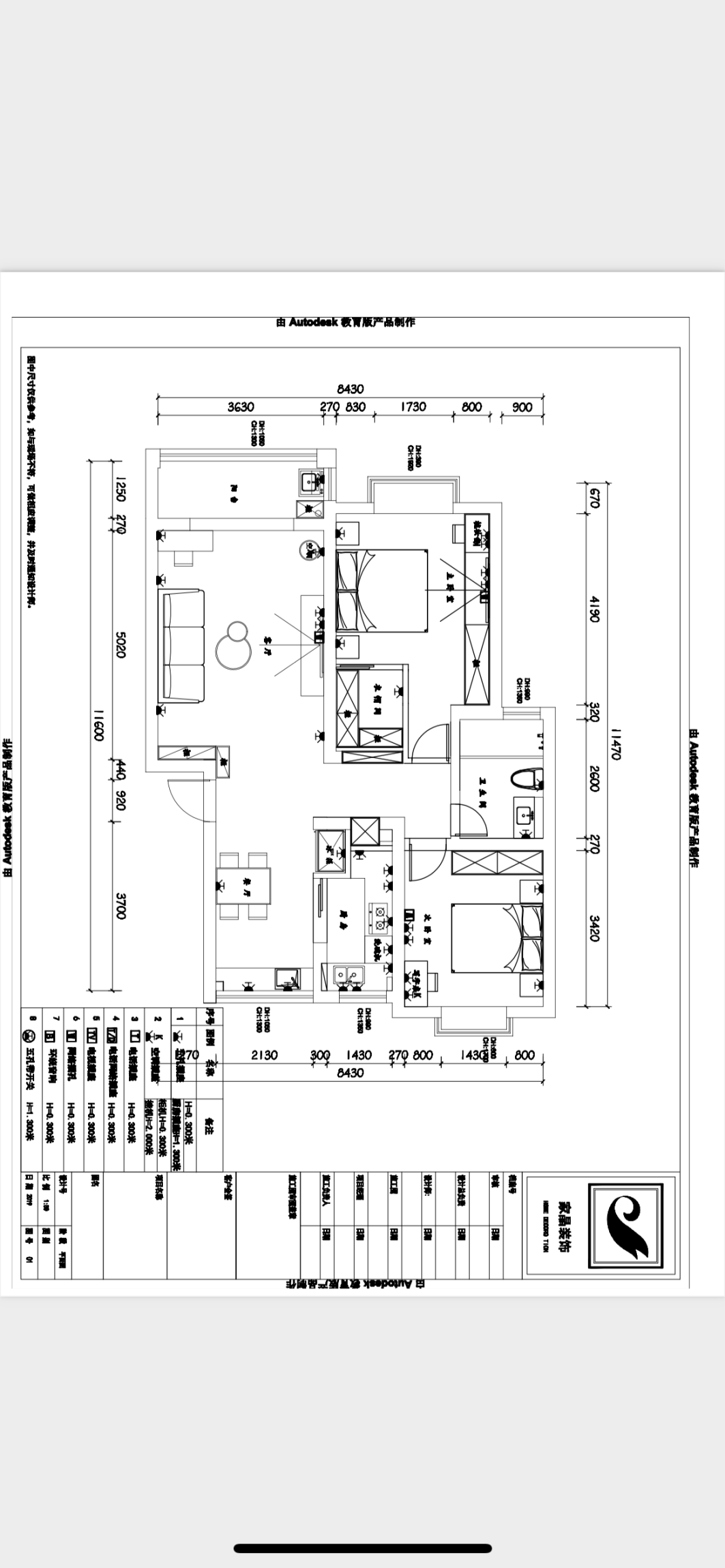
上海杨浦区住宅公寓-小户型60平米6.9万元
浏览量:
756
我要预约
房屋信息
业主信息:
Mario
预算金额:
住宅公寓-小户型
/
半包
/
60㎡
/
6.9万元
房屋地址:
杨浦区杨浦区三门路***弄*号***室
装修工期:
2023-02-14 ~ 2023-05-31
工地编号:
230209645
装修公司
上海家晶装饰工程有限公司
联系人:
孙大四
董事
电 话:
400-118-8580
口碑值:
768
排名:135
参与人员
官方客服
装潢网
Mario
业主
上海家晶装饰工程有限公司
装修公司
何展治
工程经理
胡小云
监理
李承红
设计师
工地播报
竣工阶段
官方客服
[装潢网]
2023-06-26
在
电脑端
:
工地状态设置为:已完工
上海家晶装饰工程有限公司
[装修公司]
2023-06-14
在
APP
:
樊小姐家完美收工啦,幸福生活即将开始啦,完工交付是一种责任和期许,虽然没有十全十美,但一定尽善尽美,不负所托,愿业主幸福家人所求皆如愿,所盼皆可期。
网站点评:
正常
以后拍照片时水印不要放在照片上,工程结束让业主搬进去住了,多拍一些生活照片发到播报中,让业主给予评价。
泥木阶段
上海家晶装饰工程有限公司
[装修公司]
2023-05-11
在
APP
:
吊顶已经做完了,瓷砖也贴好了,装潢网监理和我们公司的监理都到场做了专业的验收,首先检查瓷砖是否有空鼓,然后瓷砖的平整度,大面积的吊顶每一个固定处,我们的工艺经过了层层把关和验收,接下来油漆工要进场啦
上海家晶装饰工程有限公司
[装修公司]
2023-03-21
在
播报小程序
:
业主购买的瓷砖到场了,现在木工也开始进行了,1.按图施工:木工的第一步骤是看设计图纸,了解所需要进行的材料数量,确定大致施工方向和施工周期
2.搭建施工台:木工施工需要搭建自用的施工台,主要用于切割木板材,处理木板材的平整度等等。
4.架设龙骨:主要是安装主副龙骨、固定石膏
水电阶段
上海家晶装饰工程有限公司
[装修公司]
2023-03-09
在
手机端
:
水电各个点位改造按照设计图纸完成,水电主材认证无误,线路走向正确横平竖直,强弱电分色分槽,线头预留正确,符合公司验收标准,准备进行下道工序
拆改阶段
上海家晶装饰工程有限公司
[装修公司]
2023-02-20
在
手机端
:
一周拆旧结束了,接下来开始做水电阶段了,周三约的水电现场交底
准备阶段
上海家晶装饰工程有限公司
[装修公司]
2023-02-14
在
手机端
:
经过与樊小姐的半个月的沟通和协调,落实了实际的设计方案,几经挑选,选在了今天这个浪漫的节日开工,后续我们也再接再厉,争取达成业主满意的效果
官方客服
[装潢网]
2023-02-09
在
电脑端
:
业主Mario的装修工地已成功创建,施工方为上海家晶装饰工程有限公司,请及时补充参与人员,并定时播报工地进展。如有疑问请拨打:400-118-8580
业主评价
施工播报