上海装潢网APP
为您的装修保驾护航
APP下载
后退
首页
APP
菜单
我要装修
我要投诉
我要监理
合同下载
报价下载
建材选购
装修公司
工地播报
新闻中心
个人中心
已完工
杨浦区闫女士与网络监督企业侨鸿装饰在装潢网邱老师审核下签约完成。
浏览量:
1628
我要预约
房屋信息
业主信息:
朗女士
预算金额:
住宅公寓-小户型
/
半包
/
40㎡
/
12.9万元
房屋地址:
杨浦区平凉路****弄*号**室
装修工期:
2022-07-24 ~ 2022-10-31
工地编号:
220718439
装修公司
上海侨鸿建筑装潢工程有限公司
联系人:
张小胜
总经理
电 话:
400-118-8580
口碑值:
43216
排名:6
参与人员
官方客服
装潢网
朗女士
业主
阎女士
业主
上海侨鸿建筑装潢工程有限公司
装修公司
纪文宝
第三方监理
设计师慧慧
设计师
陈光立
项目经理
刘天信
水电工
欧全根
泥工
张红飞
策划
工地播报
竣工阶段
上海侨鸿建筑装潢工程有限公司
[装修公司]
2022-11-28
在
电脑端
:
11月27日纪老师已完成竣工验收,待需要完善的地方处理好就可以交付给业主了
侨鸿装饰会继续为您提供更优质的服务,用心做事,不将就,有讲究,做有态度的装修,坚持100%工程直管绝不外包,坚持终身售后承诺
客户的满意是我们最大的追求,后期有什么问题可以直接联系我们400-138-9968 15921228878,交付才是我们服务的开始
泥木阶段
纪文宝
第三方监理
2022-10-12
在
手机端
:
泥木验收:泥工瓷砖的平整度达标,留缝均匀,没有明显爆瓷现向,阴阳角方正,但墙砖有3片空鼓,还望整改,以求更好;木工吊顶规范,家俱设计新颖,做工标准,个别封边毛糙,还望改进。
上海侨鸿建筑装潢工程有限公司
[装修公司]
2022-09-07
在
电脑端
:
平凉路瓦工工程结束,木工已进场,今日板材以配送完成,木工制作中...
水电阶段
上海侨鸿建筑装潢工程有限公司
[装修公司]
2022-08-18
在
电脑端
:
8月17日下午四点平凉路工程水电验收已结束,总体装潢网工程监理和业主很满意,也有个别小瑕疵我们也一一定会注意以及更改的,现附上水电走线视频以及照片,让业主更清晰的了解自家水电管走线图,为避免后期安装以及维修不破坏线路
纪文宝
第三方监理
2022-08-17
在
手机端
:
水电验收:排线清爽,一目了然,水电到位,客户满意,也有一点暇次,电箱品牌调换,空开配置更换,接下来泥工注意所有墙洞补实,湿区防水做好,承水试验保持48小时以上。
网站点评:
一般
监理巡视员现场核查电表箱的配送错误,与预算单中品牌型号不符,装饰企业材料负责人因核准后再派送。一次警告!并望及时整改。
上海侨鸿建筑装潢工程有限公司
[装修公司]
2022-08-11
在
电脑端
:
8月11日中午12点,侨鸿装饰设计师沈慧,项目经理陈光力和电工刘师傅与业主闫女士在施工工地碰面,这次主要是与业主核对并根据业主的使用习惯定下开关插座强电弱电灯具的位置以及数量。在经过1个小时半的讨论下,全屋水电定位也已经完美结束,大家都满汗淋漓,都辛苦了!接下来就是水电施工了
纪文宝
第三方监理
2022-08-06
在
手机端
:
泥工砌墙和粉墙,湿区地面开槽浇了止水梁,新老墙装了连接筋,顶上红砖v字收口,老墙铲到红砖,墙面做了处理,粉刷前墙面做好了饼,记得墙面的保养,最后要刷墙固,提升墙体粘接力。
上海侨鸿建筑装潢工程有限公司
[装修公司]
2022-08-10
在
电脑端
:
昨日跟业主闫女士沟通现定于8月11日水电定位,附上水电施工图以及泥木工地砖及吊顶施工图
网站点评:
正常
在水电验收时,隐蔽工程线和管上传照片手机横着拍,让一个不懂的装修业主能看懂他们家线和管走向和尺寸,这个工地我没有看到业主参与播报中来?
拆改阶段
上海侨鸿建筑装潢工程有限公司
[装修公司]
2022-07-29
在
电脑端
:
拆旧工程结束,接下来瓦工即将进场砌墙粉刷墙面
网站点评:
优秀
基础做的很细,希望不要辜负业主对我们的信任,再接再厉!
上海侨鸿建筑装潢工程有限公司
[装修公司]
2022-07-26
在
电脑端
:
7月26日,沈慧设计师与项目经理陈光力去现场就拆改的注意事项与尺寸的核对与业主和师傅仔细沟通了一番,一些待定的拆改项目经过一番讨论也做出了最终的决定,尺寸的精准,让空间更进一步合理化!
准备阶段
上海侨鸿建筑装潢工程有限公司
[装修公司]
2022-07-24
在
电脑端
:
2022年7月24日上午9点18分平凉路项目开工大吉!现场对接师傅就拆除事项做一个汇总与核对,老房蜕变正式开始...
网站点评:
正常
照片少了三张看上去不够完美。
上海侨鸿建筑装潢工程有限公司
[装修公司]
2022-07-21
在
电脑端
:
效果图制作完毕,麻雀虽小五脏俱全,设计师在有限的空间里结合业主的生活习惯以及需求最大化的利用空间布局,现代简约风格,新家工程即将启动!
上海侨鸿建筑装潢工程有限公司
[装修公司]
2022-07-21
在
电脑端
:
平凉路项目施工计划表
一、施工计划时间
7月24日—10月31日,99天自然日
7月24日上午9点开工仪式,拆除工作 首期款:首付款38700元已付
7月25日拆除工作
7月30日墙面粉刷
8月15日水电工作验收 二期款:8月15日应收49020元
8月25日闭水试验验收
9月15日泥木工作验收 三期款:9月15日应收38700元
10月28日整体竣工验收 尾款:10月28日应收2580元
二、材料供给
7月30日水泥黄沙进场,墙面粉刷和测量封窗(断桥20天)
8月10日申购水管(2天安装)安排大理石门槛,防盗门安装
8月15日水电验收,申购瓷砖(2天)
8月17日瓦工进场铺贴瓷砖
8月25日闭水试验验收,板材进场
8月26日木工进场
9月15日泥木验收,定制门套、移门、吊顶和变更项目核对收款
9月20日油漆工进场
10月15日安装洁具,灯具以及定制品安装
10月25日涂料修补
10月26日保洁
10月28日整体验收
网站点评:
正常
工地进度表细节做的不错。
上海侨鸿建筑装潢工程有限公司
[装修公司]
2022-07-19
在
电脑端
:
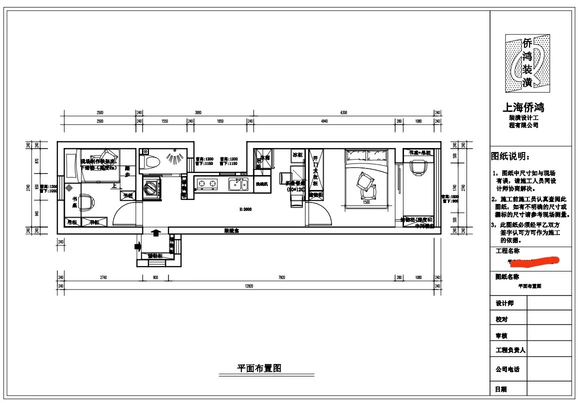
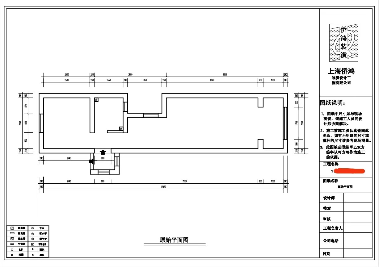
2022年7月18日业主闫女士通过装潢网跟侨鸿装饰顺利签订合同,开工日期7月24日早上9点,附合同内容以及平面布置图,效果图正在制作中
阎女士
[业主]
2022-07-18
在
电脑端
:
2022年7月18号,闫女士通过装潢网第三方服务监督机构与上海侨鸿装饰签订了装修合同,装潢网邱老师认真的审核了装修报价及装修合同,业主有了装潢网监督装饰企业表示很放心,装潢网同时也安排了监理委的监理老师装潢网巡视员装修过程三次免费节点验收的服务,合同半包价12.9万。
官方客服
[装潢网]
2022-07-18
在
电脑端
:
业主朗女士的装修工地已成功创建,施工方为上海侨鸿建筑装潢工程有限公司,请及时补充参与人员,并定时播报工地进展。如有疑问请拨打:400-118-8580
业主评价
施工播报