上海装潢网APP
为您的装修保驾护航
APP下载
后退
首页
APP
菜单
我要装修
我要投诉
我要监理
合同下载
报价下载
建材选购
装修公司
工地播报
新闻中心
个人中心
已完工
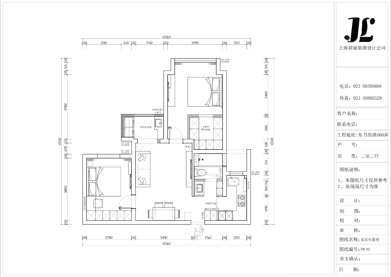
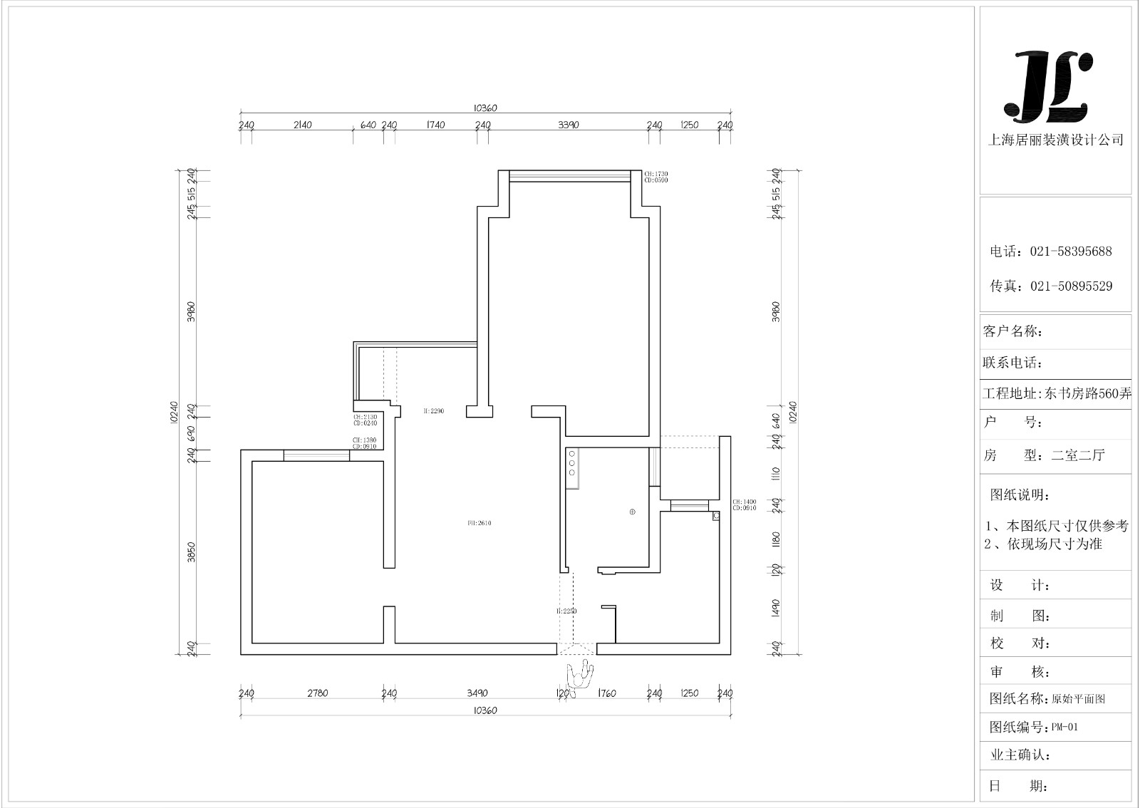
上海浦东新区78平米9.6万元
浏览量:
813
我要预约
房屋信息
业主信息:
周小姐
预算金额:
二室二厅
/
半包
/
78㎡
/
9.6万元
房屋地址:
浦东新区东书房路***弄**号**室
装修工期:
2025-02-19 ~ 2025-06-30
工地编号:
250221975
装修公司
上海居丽建筑装潢工程有限公司
联系人:
金佳乐
经理
电 话:
400-118-8580
口碑值:
38417
排名:11
参与人员
官方客服
装潢网
周小姐
业主
上海居丽建筑装潢工程有限公司
装修公司
金佳乐
区总经理
罗煜馨
材料人员
王兆华
监理
金娅婷
门店经理
刘旭歌
设计师
唐文凯
工程经理
宛新东
项目经理
江世九
敲墙师傅
宋保柱
水电工
张世兵
泥工
李茂华
木工
江峰平
油漆工
工地播报
竣工阶段
上海居丽建筑装潢工程有限公司
[装修公司]
2025-09-19
在
电脑端
:
恭喜项目竣工验收!匠心独运,细节之处见真章,这一切都离不开居丽团队成员的辛勤工作和周小姐的信任支持。家的轮廓愈发清晰,装修完美收官,期待与您共赏这份美好,家的模样,如您所愿。愿这空间满载温馨与欢笑!圆满交付,理想家落地。竣工不是终点,而是美好生活的序章。
油漆阶段
上海居丽建筑装潢工程有限公司
[装修公司]
2025-05-20
在
电脑端
:
【无漆新主张|墙板定义居住新美学】告别涂料粉尘,用板材重构墙面想象力。
◆环保即装即住:0甲醛基材,施工无味,入住无需等待
◆颜值抗打耐用:防潮抗污,耐磨耐刮,告别开裂褪色烦恼
◆模块化快装术:毛坯墙直接上板,省去基层处理,工期减半
◆风格自由切换:木纹/石纹/纯色,从侘寂到轻奢,一面墙解锁N种氛围
泥木阶段
上海居丽建筑装潢工程有限公司
[装修公司]
2025-05-10
在
电脑端
:
恭喜泥木施工顺利通过验收,期待为您打造更多美好空间!泥木各工艺的规范及验收方法也是极其重要的环节,马虎不得,这一环节做好了,可以避免很多后期不必要的麻烦。居丽装饰泥木验收时,业主、项目经理、工程管家、质检都必须在场,验收合格签字后方可继续施工。
上海居丽建筑装潢工程有限公司
[装修公司]
2025-05-02
在
电脑端
:
继上一次水电工程之后,我们一起来看看目前的装修进度“泥木施工阶段”,它在家装环节中一直占着重要地位,典型的小细节大学问呢,而且泥木工程工期时间长、细致细节的东西很多,对工人的要求更高哦~居丽装饰对施工过程中出现的问题进行监督与检查,为每位业主保驾护航!
水电阶段
上海居丽建筑装潢工程有限公司
[装修公司]
2025-04-14
在
电脑端
:
迎来了三林世博家园项目的水电验收。恭喜水电装修项目顺利通过验收,期待为您打造更多美好空间!在水电工程中,居丽追求完美,注重细节,苛求质量,为您提供最安全可靠的水电解决方案。让您的家居生活远离安全隐患,享受无忧无虑的幸福时光。
上海居丽建筑装潢工程有限公司
[装修公司]
2025-03-31
在
电脑端
:
开启水电阶段。居丽工程队开槽横平竖直,现场干净整洁。其实开槽这项工作现场灰尘非常大,每次开槽完毕都会清理干净现场,小细节体现出师傅认真负责的工作态度。 交底–开槽–安装底盒–做线管水管–穿线–打压验收–粉槽 每一个步骤都要一步一个脚印。 中国有句古话:磨刀不误砍柴工。做好每一项最基本的工作,才能让后续的工程越做越好!
拆改阶段
上海居丽建筑装潢工程有限公司
[装修公司]
2025-03-20
在
电脑端
:
拆旧进行时,周小姐让我们为您的家重塑年轻、舒适的模样。从内部到外部,从细节到整体,我们将用专业的技术和独到的眼光,为你打造全新的生活空间!期待新家的蓝图变成现实,带给您和您的家人们更多的幸福和温馨!
准备阶段
上海居丽建筑装潢工程有限公司
[装修公司]
2025-02-22
在
电脑端
:
恭祝【三林世博家园】的尊贵业主开工大吉,顺遂如意!
十四年前,我们曾共同精心打造的婚房梦想,而今,这份深厚的情谊如同陈年佳酿,愈发醇厚。老客户的回归,不仅是对我们过往努力的最高赞誉,更是对未来合作的无限期待,这份惊喜与欣慰,温暖着居丽装饰的每一个角落。
此次,旧屋换新颜,再次将信任与期待托付于居丽(全流程托管服务,施工规范,售后无忧,工作再忙也能坐享品质换新!)。我们期待与您携手共创更多美好家居故事,让家成为最温暖的港湾!
官方客服
[装潢网]
2025-02-21
在
电脑端
:
业主周小姐的装修工地已成功创建,施工企业为上海居丽建筑装潢工程有限公司,播报须知:为了评比最美工地,所有施工人员须参与到播报中,播报图片要求清晰,并附加文字说明,让装修小白也能一目了然,积极播报,更好的体现工艺的专业性,取得业主的好评是我们服务的目标,每个阶段不得少于两次播报,装潢网巡视员会对工地和播报进行审核,如有疑问请拨打:400-118-8580
业主评价
施工播报