上海装潢网APP
为您的装修保驾护航
APP下载
后退
首页
APP
菜单
我要装修
我要投诉
我要监理
合同下载
报价下载
建材选购
装修公司
工地播报
新闻中心
个人中心
已完工
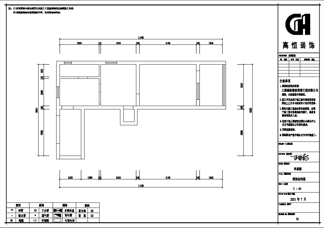
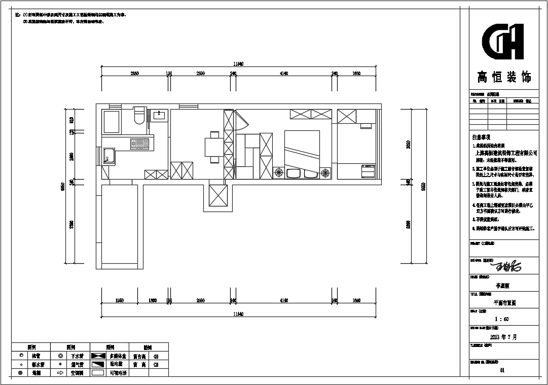
上海长宁区住宅公寓-小户型36平米6.2万元
浏览量:
657
我要预约
房屋信息
业主信息:
张先生
预算金额:
住宅公寓-小户型
/
半包
/
36㎡
/
6.2万元
房屋地址:
长宁区天山二村***号乙***
装修工期:
2023-08-10 ~ 2023-09-30
工地编号:
230807319
装修公司
上海高恒建筑装饰工程有限公司
联系人:
叶飞
经理
电 话:
400-118-8580
口碑值:
106
排名:650
参与人员
官方客服
装潢网
张先生
业主
上海高恒建筑装饰工程有限公司
装修公司
朱越超
第三方监理
王敬伦
设计师
徐敏
油漆工
吴新强
敲墙师傅
宋师傅
木工
徐业林
泥工
李月华
水电工
叶飞
工程经理
工地播报
泥木阶段
上海高恒建筑装饰工程有限公司
[装修公司]
2023-09-22
在
电脑端
:
1、地砖坡度要求(地漏处为排水最低点,坡度合理,排水顺畅,无积水)地漏是否通常,地面是否积水。卫生间要求按墙砖压地砖方式铺贴。2、墙砖表面平整度、垂直度、阴阳角方正,及接缝高低差、直线度、宽度符合要求,一个墙面不宜有两块非整砖,墙地砖无裂纹、缺棱、掉角等缺陷。3、墙地砖空鼓率是否合格(数量不超过5%),墙地砖镶贴牢固、色泽一致、平整、干净、不漏贴和错贴。4、客厅、餐厅地砖是否进行成品保护。5、特殊要求施工是,需按设计要求,对照设计方案进行施工。1、吊顶饰面接缝倒45度角,饰面板搭接处应在横撑处,螺钉间距200㎜以内,转角平整无破损。2、柜体制作精细,搭接严密,安装牢固,水平度、垂直度、方正度在允许偏差(3㎜)内。3、吊顶标高及龙骨间距应符合设计要求及工艺要求。4、饰面平整、固定均匀、牢固、柜体收口完整、清边平整、无明显木纹色差。
网站点评:
一般
你们单位做的装修播报,没有结果?到这里就没有下文了,后期你让装修业主怎么查看,对于这工地打分不及格。
水电阶段
上海高恒建筑装饰工程有限公司
[装修公司]
2023-08-23
在
电脑端
:
水电做好,下一步一般是做泥工,包括地面找平、淋浴间石矶、防水及砌墙、墙地砖铺设等环节,有时还包括排水管道的铺设及便槽安装。当然也可做木工,只要衔接好就行,等木工、泥工做好,就可以刮腻子、涂面漆了。
上海高恒建筑装饰工程有限公司
[装修公司]
2023-08-16
在
电脑端
:
水电放样是装修前期的重中之重,意思其实就是要现场确定开关、插座的位置、数量,还要明确家具的尺寸和家电的位置,以免后期出现插座面板被床头柜挡住的尴尬之举;自水电放样后,水电师傅就要开始以此施工。这个阶段属于隐蔽工程,装修后看不见线管,如果后期出现问题,整改起来极难。
拆改阶段
上海高恒建筑装饰工程有限公司
[装修公司]
2023-08-11
在
电脑端
:
上海第一批30多年的老房子必须把原有粉刷铲除,并且一直铲到红砖,这首先是粉刷层是整体的,只要动铲,就会铲到红砖砌体,再就是为了使后面的水泥砂浆粉刷层粘结牢固,面层平整,以利于后续的装修装饰。主要就是这两方面的原因
准备阶段
上海高恒建筑装饰工程有限公司
[装修公司]
2023-08-11
在
电脑端
:
8月在装潢网宜山路店与张先生签约装修合同,感谢张先生对高恒公司信任 ! 不负所托。
官方客服
[装潢网]
2023-08-07
在
电脑端
:
业主张先生的装修工地已成功创建,施工方为上海高恒建筑装饰工程有限公司,播报须知:为了通过播报评比出最美工地,所有施工人员必须参与到播报中,装潢网工地播报上传图片要求横拍清晰照片,每排为五张,两排为十张,依次类推加上文字说明,让装修小白也能一目了然,在播报中的相关人员积极播报,利用好平台来展现自己的舞台,最后取得业主及第三方的好评才是我们真正服务的体现,每一个阶段不得少于两次播报,由装潢网巡视特派员审核播报,如有疑问请拨打:400-118-8580
业主评价
施工播报