上海装潢网APP
为您的装修保驾护航
APP下载
后退
首页
APP
菜单
我要装修
我要投诉
我要监理
合同下载
报价下载
建材选购
装修公司
工地播报
新闻中心
个人中心
已完工
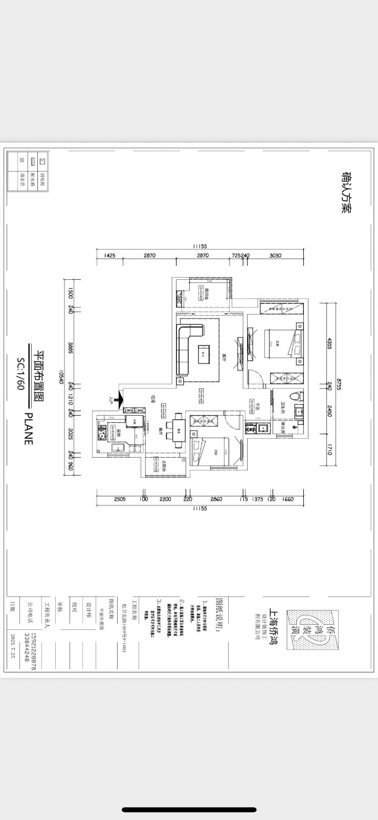
上海松江区住宅公寓-二房97平米13.4万元
浏览量:
1009
我要预约
房屋信息
业主信息:
周杭
预算金额:
住宅公寓-二房
/
半包
/
97㎡
/
13.4万元
房屋地址:
松江区松江区香亭路****号华卫苑
装修工期:
2023-08-07 ~ 2023-11-17
工地编号:
230805491
装修公司
上海侨鸿建筑装潢工程有限公司
联系人:
张小胜
总经理
电 话:
400-118-8580
口碑值:
43216
排名:6
参与人员
官方客服
装潢网
周杭
业主
上海侨鸿建筑装潢工程有限公司
装修公司
朱月超
第三方监理
葛贤亮
施工队长
赵银月
设计师
张鸿飞
策划
陈光力
材料人员
葛张有
泥工
程武林
水电工
何发兵
泥工
工地播报
竣工阶段
周杭
[业主]
2023-11-27
在
电脑端
:
1.工程工期正常,无延误,按时完工。
2.工程期间无乱加项收费项目。
3.设计师赵老师和施工队长葛师傅服务态度较好,沟通顺畅,碰到问题积极面对,不玩套路,不扯皮。
上海侨鸿建筑装潢工程有限公司
[装修公司]
2023-11-27
在
电脑端
:
经装潢网监理老师,业主验收,本项目符合质量验收标准和要求,达到交房要求。谢谢业主的支持配合!
油漆阶段
上海侨鸿建筑装潢工程有限公司
[装修公司]
2023-10-23
在
电脑端
:
木制工作已完成,油漆工已进场对柜体进行保护工作,随后进行第一道工序,全屋挂网格布!
上海侨鸿建筑装潢工程有限公司
[装修公司]
2023-10-14
在
电脑端
:
今日油漆工师傅已进场,对现场柜体进行了保护工作,先进行第一道工序,全屋挂网格布批第一道腻子
泥木阶段
上海侨鸿建筑装潢工程有限公司
[装修公司]
2023-10-12
在
电脑端
:
国庆假期前砖以贴好,现在正在木制工作中...
上海侨鸿建筑装潢工程有限公司
[装修公司]
2023-09-20
在
电脑端
:
墙面防水已刷好,卫生间满做2.4米高,地面防水闭水试验48小时
上海侨鸿建筑装潢工程有限公司
[装修公司]
2023-09-16
在
电脑端
:
水电做好已验收好,泥工进场贴砖了
上海侨鸿建筑装潢工程有限公司
[装修公司]
2023-08-21
在
电脑端
:
砌墙已经完成,剩下粉墙工作,预计明日完成,跟业主周先生定于周四上午水电定位,附上施工进度表以作参考
上海侨鸿建筑装潢工程有限公司
[装修公司]
2023-08-19
在
电脑端
:
泥工入场砌墙粉墙
网站点评:
正常
为什么跟你们讲了多次照片每一次上传不能低于五张?文字阐述过于简单你们怎么还是这样不改,还有你们贴砖人员姓名没有在这和个播报中?
水电阶段
上海侨鸿建筑装潢工程有限公司
[装修公司]
2023-09-09
在
电脑端
:
ppr水管已做好,水电快结束了,已和业主周先生,装潢网巡视朱老师约定下周二水电验收
上海侨鸿建筑装潢工程有限公司
[装修公司]
2023-09-02
在
电脑端
:
水电材料进场,业主已验收,水电线槽已开好,开始穿管布线了
拆改阶段
上海侨鸿建筑装潢工程有限公司
[装修公司]
2023-08-14
在
电脑端
:
拆旧进行中
准备阶段
上海侨鸿建筑装潢工程有限公司
[装修公司]
2023-08-14
在
电脑端
:
2023.8.07侨鸿装饰设计师赵银月,项目经理葛贤亮与业主周先生在上午10点28分举行了开工仪式,随后进行拆改前的保护措施,与拆旧师傅进行交接
上海侨鸿建筑装潢工程有限公司
[装修公司]
2023-08-06
在
电脑端
:
签约播报:8月5号在装潢网宜山路店与周先生签约装修合同,感谢周先生对我公司的信任,我们一定保质保量高标准的完成这次合作。
官方客服
[装潢网]
2023-08-05
在
电脑端
:
业主周杭的装修工地已成功创建,施工方为上海侨鸿建筑装潢工程有限公司,播报须知:为了通过播报评比出最美工地,所有施工人员必须参与到播报中,装潢网工地播报上传图片要求横拍清晰照片,每排为五张,两排为十张,依次类推加上文字说明,让装修小白也能一目了然,在播报中的相关人员积极播报,利用好平台来展现自己的舞台,最后取得业主及第三方的好评才是我们真正服务的体现,每一个阶段不得少于两次播报,由装潢网巡视特派员审核播报,如有疑问请拨打:400-118-8580
业主评价
施工播报