上海装潢网APP
为您的装修保驾护航
APP下载
后退
首页
APP
菜单
我要装修
我要投诉
我要监理
合同下载
报价下载
建材选购
装修公司
工地播报
新闻中心
个人中心
已完工
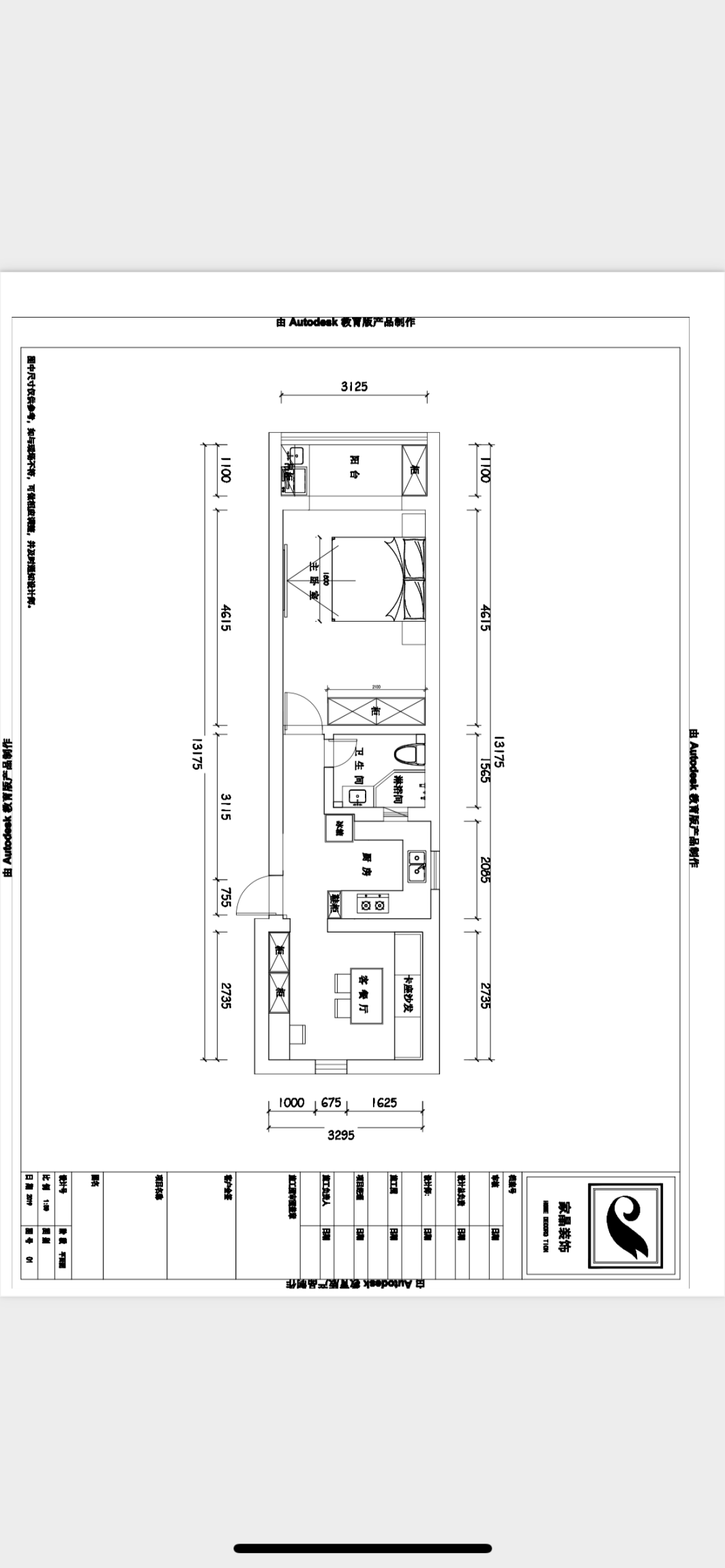
上海长宁区住宅公寓-小户型43平米12.3万元
浏览量:
647
我要预约
房屋信息
业主信息:
王小姐
预算金额:
住宅公寓-小户型
/
半包
/
43㎡
/
12·3万元
房屋地址:
长宁区天山西路***弄
装修工期:
2023-08-07 完工
工地编号:
230428787
业主评价
星级评分:
王小姐
(业主)
于
2023-09-15 15:51:31
评价:
给爸妈装的房子 历时三个多月终于完工!通过家装网选择了家晶装饰 全程专人负责 细节完善!有啥问题都及时处理了!很满意!
装修公司
上海家晶装饰工程有限公司
联系人:
孙大四
董事
电 话:
400-118-8580
口碑值:
768
排名:135
参与人员
官方客服
装潢网
王小姐
业主
上海家晶装饰工程有限公司
装修公司
李承红
设计师
胡小云
监理
何展志
工程经理
周亚
客服人员
工地播报
竣工阶段
王小姐
[业主]
2023-09-13
在
APP
:
给爸妈装的房子 历时三个多月终于完工!通过上海装潢网推荐的装饰公司我选择了家晶装饰 全程有第三方监管,资金有装潢网托管,节点验收好由装潢网付款,专人负责主动权紧紧的抓在业主手里细节完善!有啥问题都及时处理了!很满意!
官方客服
[装潢网]
2023-09-06
在
电脑端
:
工地状态设置为:已完工
上海家晶装饰工程有限公司
[装修公司]
2023-09-05
在
APP
:
交工啦,在装潢网的专业监理验收结束啦,把房子交给业主了,因为是叔叔阿姨养老的房子,所有以实用耐脏为主的,恭祝业主一家开心入住
油漆阶段
上海家晶装饰工程有限公司
[装修公司]
2023-08-05
在
APP
:
目前正在进去油漆,与安装阶段。工地整洁。很快就能准备验收工作啦
泥木阶段
上海家晶装饰工程有限公司
[装修公司]
2023-07-05
在
APP
:
水电结束后,与业主进行所有主材挑选,所有瓷砖全部进场,瓦工师傅进行了有条不紊的施工后,兔宝宝生态板进场,开始制作鞋柜和衣柜,叔叔阿姨居住,主要讲究实用环保性,设计师到场与业主确定好尺寸和格局,接下来师傅开始制作了
水电阶段
上海家晶装饰工程有限公司
[装修公司]
2023-06-03
在
APP
:
今天水电结束了,配备了专业的监理到场验收,所有强电弱电已经排放到位了,电线槽横平竖直,所有在转弯处都是大圆弧转弯,强弱电交接处都做了锡箔纸隔开,避免有干扰,以后电线检修方便更换,全屋隆图断桥80系列双层钢化窗户安装结束,隔音隔热性更好
拆改阶段
上海家晶装饰工程有限公司
[装修公司]
2023-06-03
在
APP
:
开工之前就已经安排好拆旧人员。所以一开工工人就进入拆旧阶段。再保证安全的前提下迅速的的作业中。提前完成拆旧阶段。
准备阶段
上海家晶装饰工程有限公司
[装修公司]
2023-05-11
在
手机端
:
天山西路,这套是两室的户型给叔叔阿姨养老居住的房子,主要是清爽舒适和储物的需求,改成了一室一厅的格局,经历一周的设计和沟通,我们去装潢网在邱老师的认真监督下签订了合同,并确定了在5月7日这个好日子开工啦
官方客服
[装潢网]
2023-04-28
在
电脑端
:
业主王小姐的装修工地已成功创建,施工方为上海家晶装饰工程有限公司,请及时补充参与人员,并定时播报工地进展。如有疑问请拨打:400-118-8580
业主评价
施工播报