工地
浦东新区
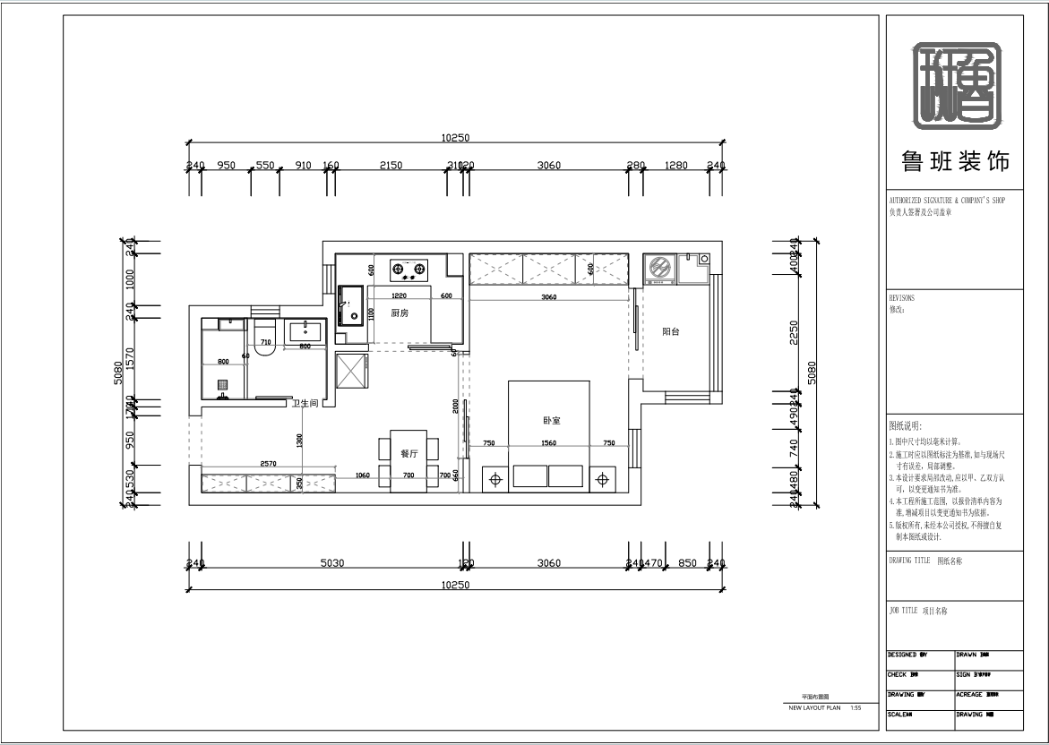
小户型一居室
| 开工日期: | 2024-11-23 | 竣工日期: | 2025-02-23 |
| 面积: | 80㎡ | 预算: | 10万元 |
| 户型: | 小户型 | 风格: | 现代风格 |
| 施工单位: | 沈阳鲁班建筑工程有限公司上海分公司 | ||
团队
唐龙祥
施工队长
吴岳国
项目监理
戴瑞华
首席设计师
施工情况
准备阶段
预算图纸准备
业主沈女士的装修工程已于2024年11月23日正式启动!鲁班装饰衷心感谢沈女士对我们的信赖与支持,祝愿家居装修过程顺利,并确保最终效果完美实现您的设想。我们将全力以赴,以最高的标准和质量完成每一个装修细节。再次感谢沈女士选择鲁班装饰,让我们共同期待一个温馨家居的诞生!祝装修工程顺利进行,开工大吉!
拆改阶段
土建拆墙改造
位于浦东新区的光明星城迎来了拆改工程,师傅们正认真细致的施工中。为后续的水电施工做好准备,鲁班装饰秉持认真负责的施工态度,为业主打造理想的家居装修。
水电阶段
水电隐蔽施工
经过一个多礼拜的水电改造,水电工程终于结束了!水电是装修过程中非常重要的一环,现场师傅严格按照施工规范标准执行。开槽横平竖直,电线分色铺设,在保证交付时间的前提下,同时质量上不能松懈,为后续的工作打下坚实的基础!冷热水管分开排放,强弱电分槽排放,交界处包裹锡纸防止信号干扰,下水管洞及开关插座底盒安放防护盖防止垃圾进入,下水管排放前必须有斜度且地面槽做防水。业主沈女士已完成验收事宜,可以进行下一步泥工贴砖工作了!
泥木阶段
木作泥瓦施工
油漆阶段
墙面油漆施工
竣工阶段
家具软装安装
