上海侨鸿建筑装潢工程有限公司
网络监督单位
质保金:
5万
口碑值:
43216
浦东新区张杨北路1933弄2号401室(6号线地铁东靖站对面东旭晶座4F),4001389968,张先生
联系方式
工地
浦东新区
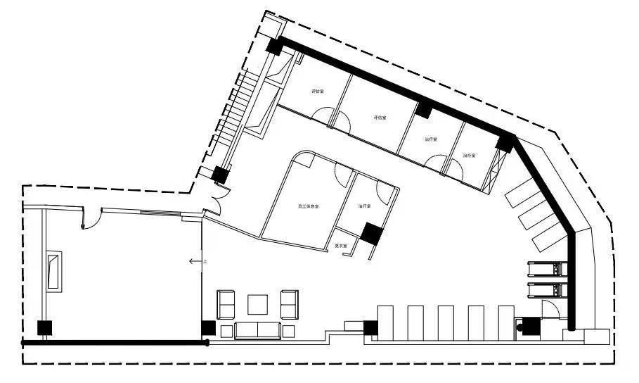
中联运动康复理疗中心
| 开工日期: | 2020-11-10 | 竣工日期: | 2022-06-15 |
| 面积: | 352㎡ | 预算: | 26万元 |
| 户型: | 小户型 | 风格: | 现代风格 |
| 施工单位: | 上海侨鸿建筑装潢工程有限公司 | ||
团队
张鸿飞
首席设计师
胡思雄
项目经理
康祖鹏
首席设计师
施工情况
准备阶段
预算图纸准备
拆改阶段
土建拆墙改造
水电阶段
水电隐蔽施工
泥木阶段
木作泥瓦施工
油漆阶段
墙面油漆施工
竣工阶段
家具软装安装
