工地
宝山区
淞南五村老房改造
| 开工日期: | 2020-12-06 | 竣工日期: | 2021-03-06 |
| 面积: | 76㎡ | 预算: | 8万元 |
| 户型: | 二房 | 风格: | 现代风格 |
| 施工单位: | 上海居点建筑装潢工程有限公司 | ||
团队
马骏
设计师
施工情况
准备阶段
预算图纸准备
没有上传本阶段内容
拆改阶段
土建拆墙改造
没有上传本阶段内容
水电阶段
水电隐蔽施工
没有上传本阶段内容
泥木阶段
木作泥瓦施工
简洁和实用是现代中式简约风格设计的两个主要特点
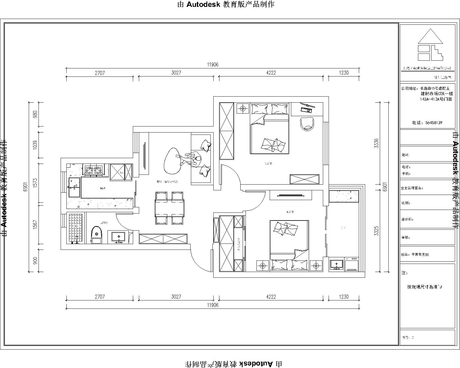
平面布置图
卧室
1
2
油漆阶段
墙面油漆施工
没有上传本阶段内容
竣工阶段
家具软装安装
没有上传本阶段内容
