工地
江阴市
水城花园130平样板房装饰工程项目
| 开工日期: | 2020-06-01 | 竣工日期: | 2020-11-30 |
| 面积: | 130㎡ | 预算: | 44万元 |
| 户型: | 三房 | 风格: | 现代风格 |
| 施工单位: | 上海东顺设计装饰有限公司 | ||
团队
于涛
设计师
施工情况
准备阶段
预算图纸准备
江阴海澜集团水城花园130平方样板房设计图纸,布置图纸,项目目录,设计说明,原始机构图,拆墙示意图。砌墙尺寸图。平面布置图,等施工现场实景照片,地暖铺设照片,水管走路照片。电线线路照片等,让业主一目了然,为以后维修做了保驾护航的准备,这就是东顺施工的保障。
客餐厅效果图
主卧效果图
次卧效果图
儿童房效果图
水城花园项目130平方,设计方案图集
图纸目录
设计说明
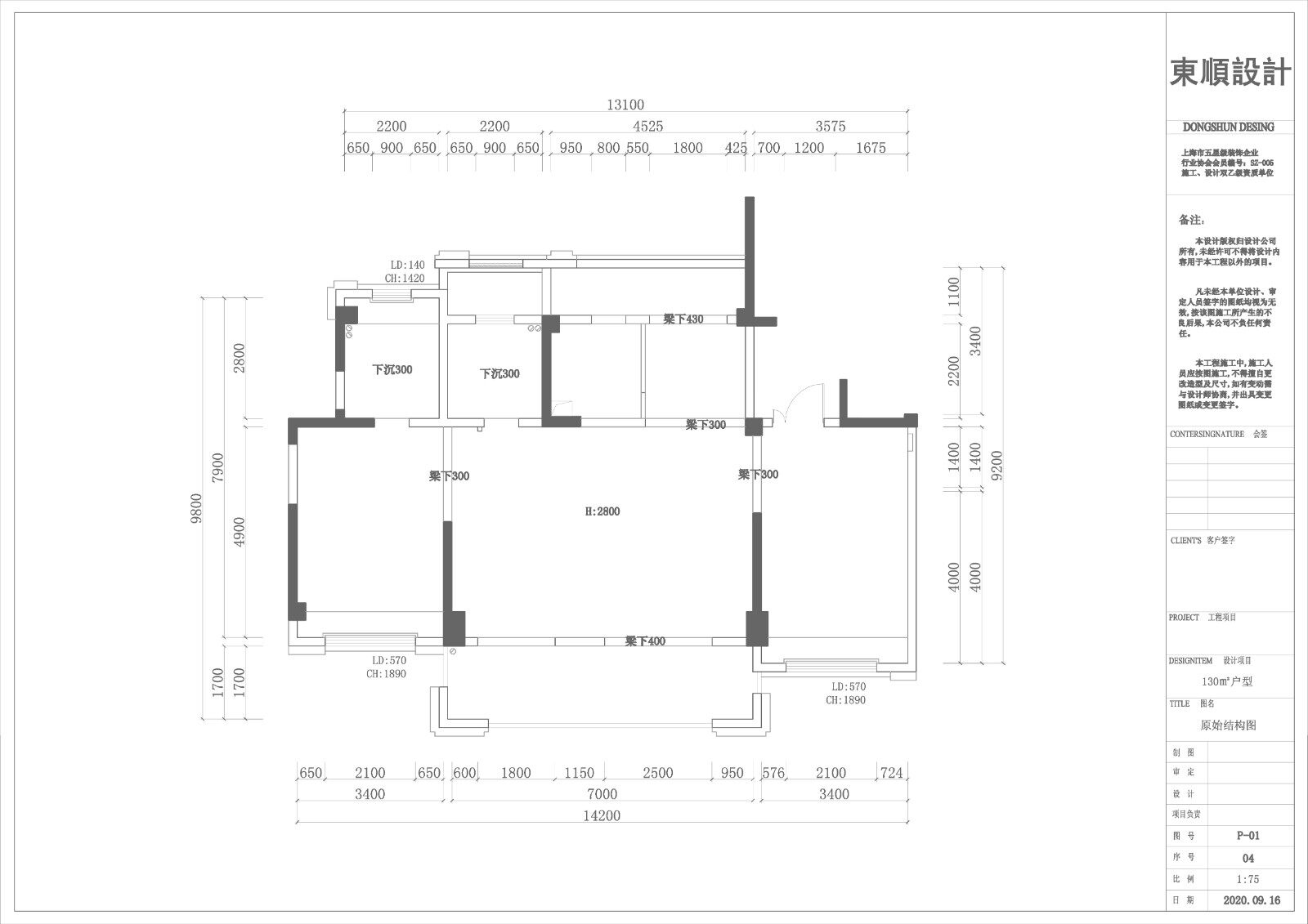
原始结构图
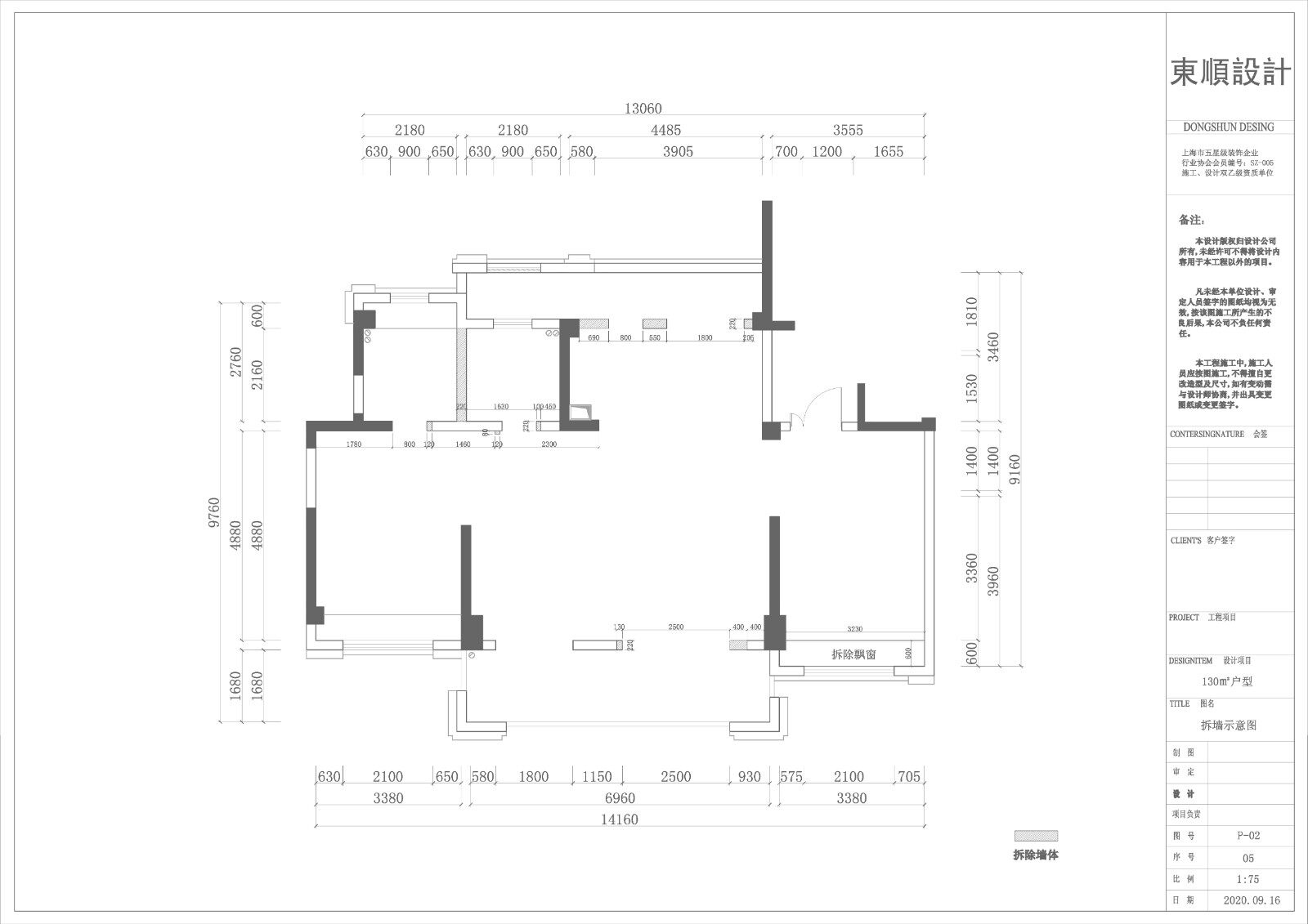
拆墙示意图
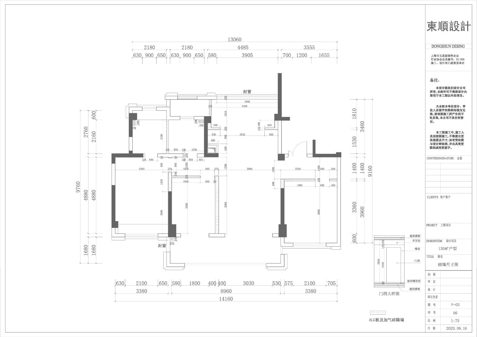
拆墙尺寸图
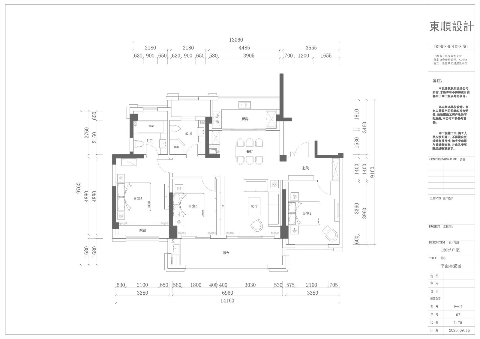
平面布置图
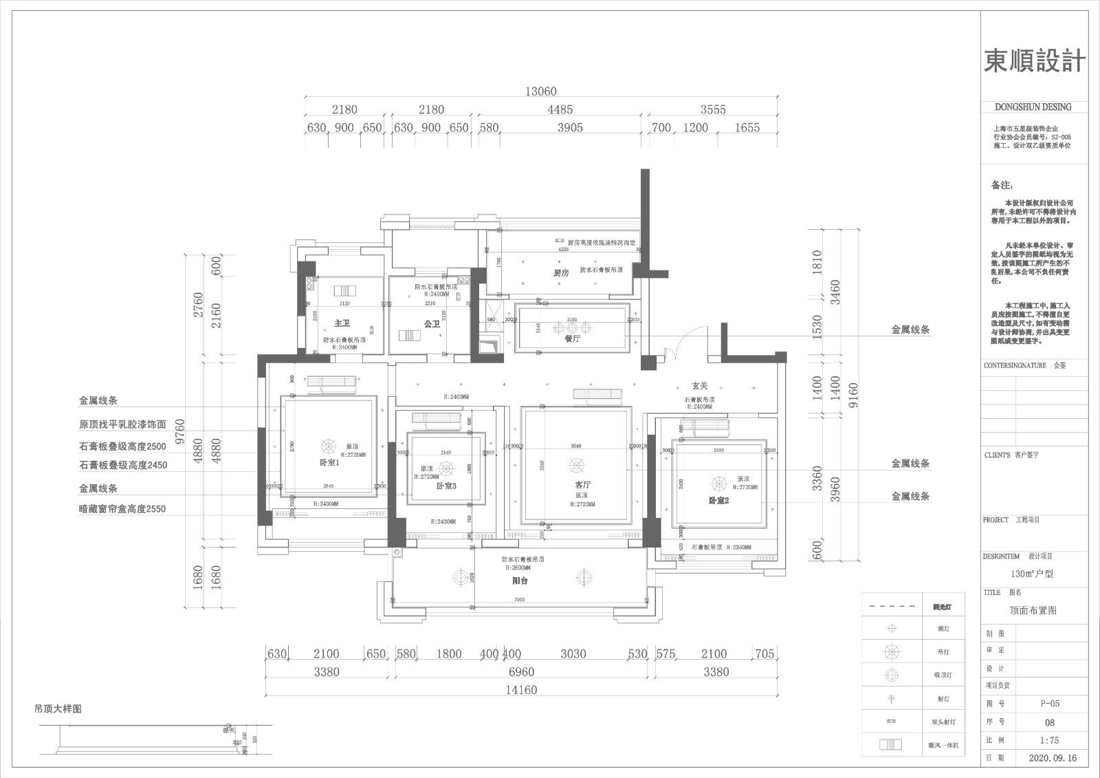
顶面布置图
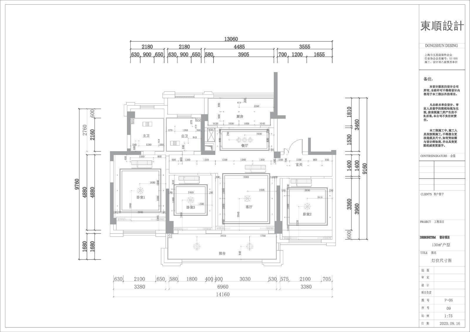
灯位尺寸图
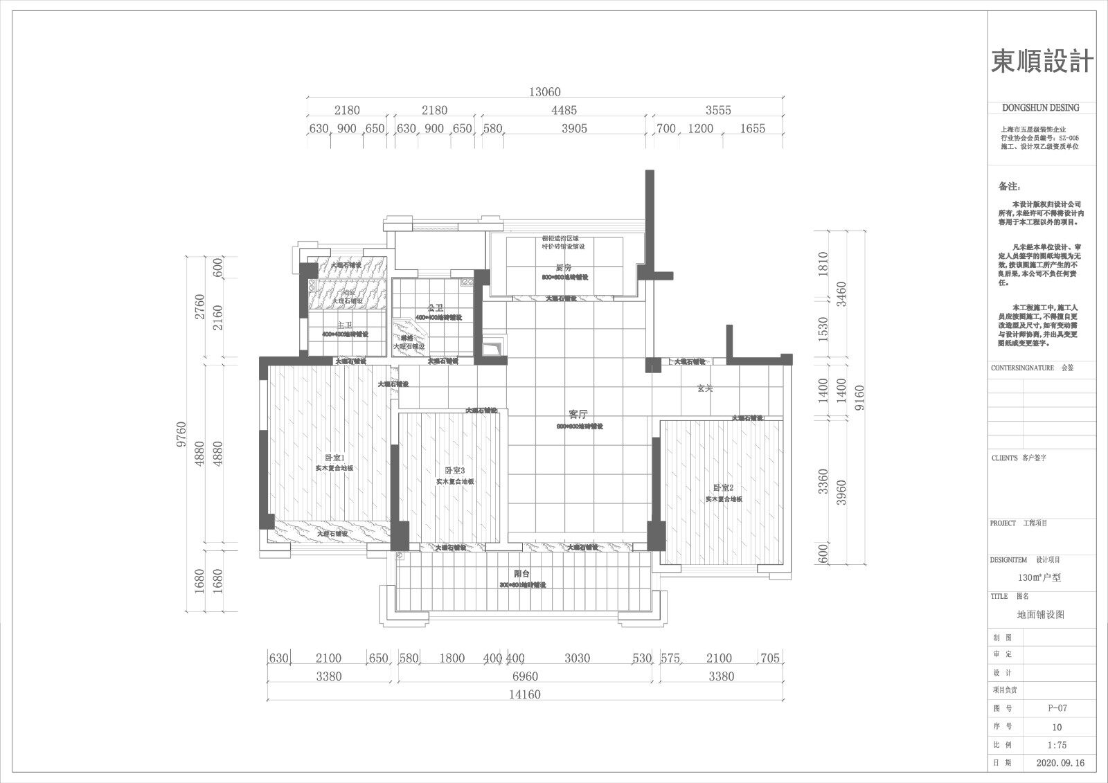
地面铺设图
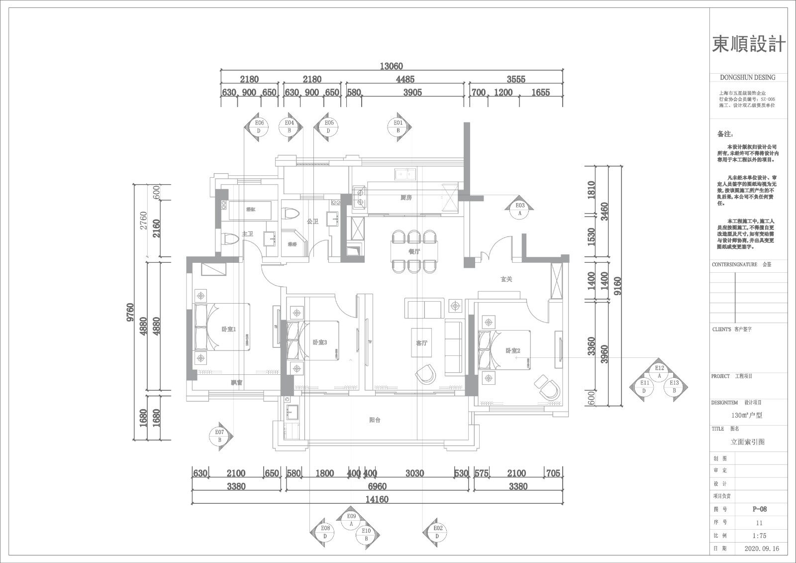
立面索引图
阳台/客厅/餐厅及厨房B立面图
阳台/客厅/餐厅及厨房D立面图
厨房A立面图公卫B/D立面图
卧室1及主卫D立面图
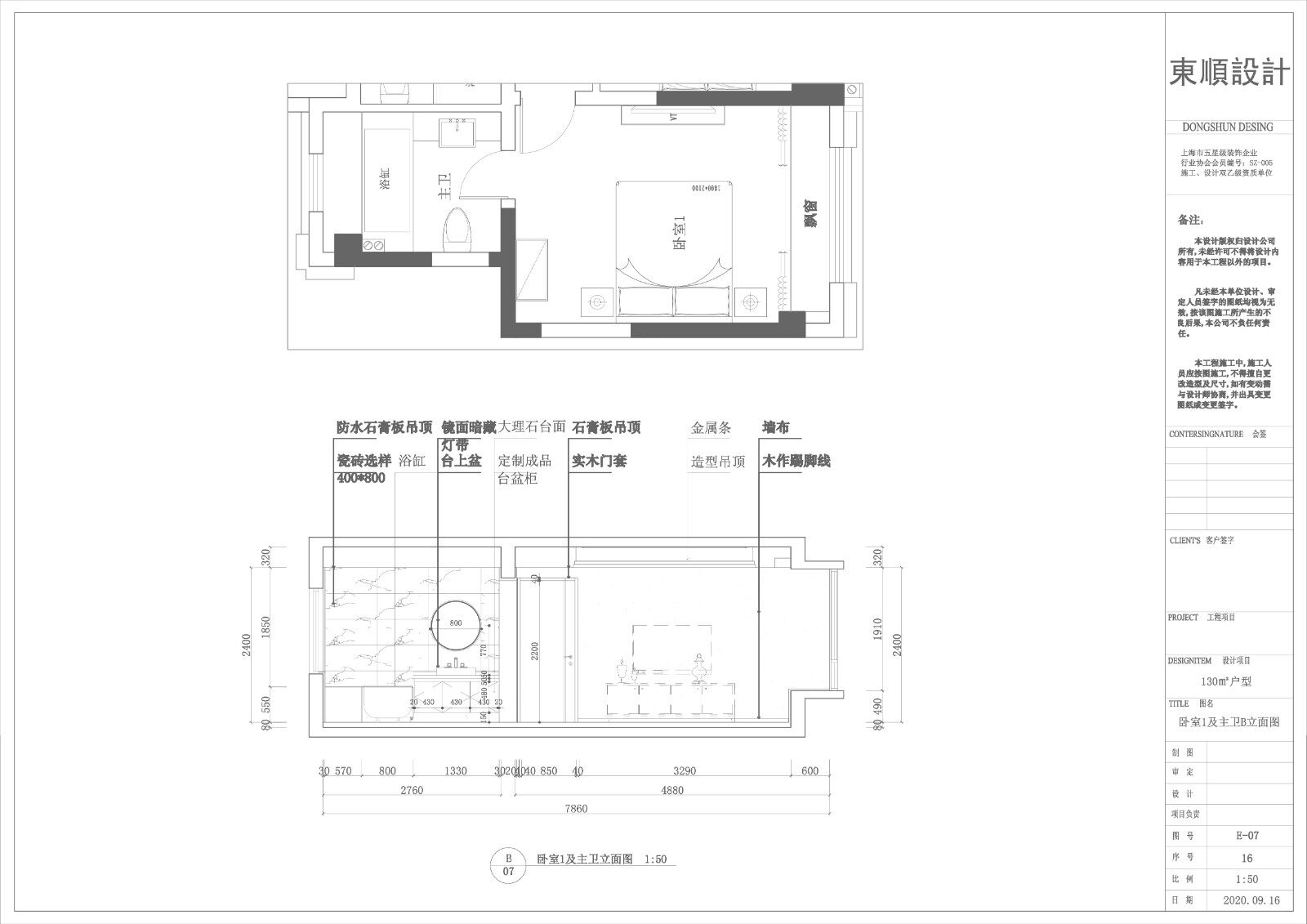
卧室1及主卫B立面图
卧室3及阳台D立面图卧室3A/B立面图
卧室2D/A/B立面图
工程说明图
用户配电箱接线图
强电布置图
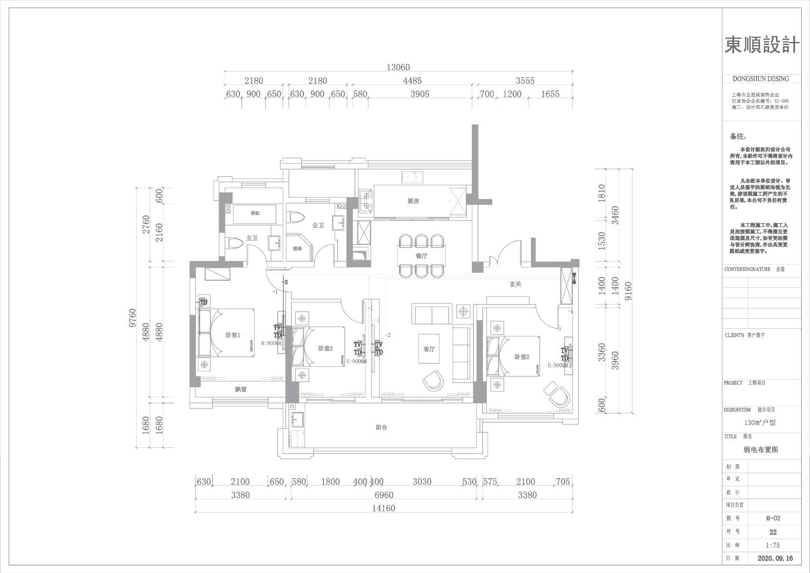
弱电布置图
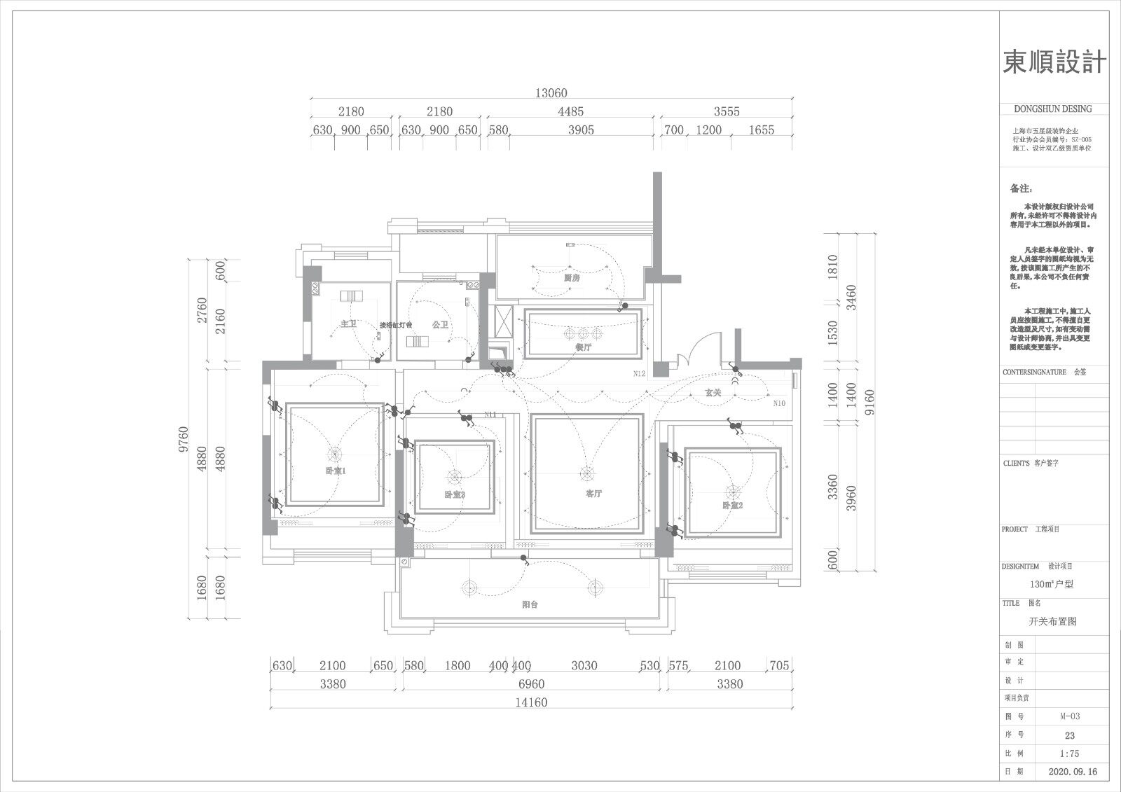
开关布置图
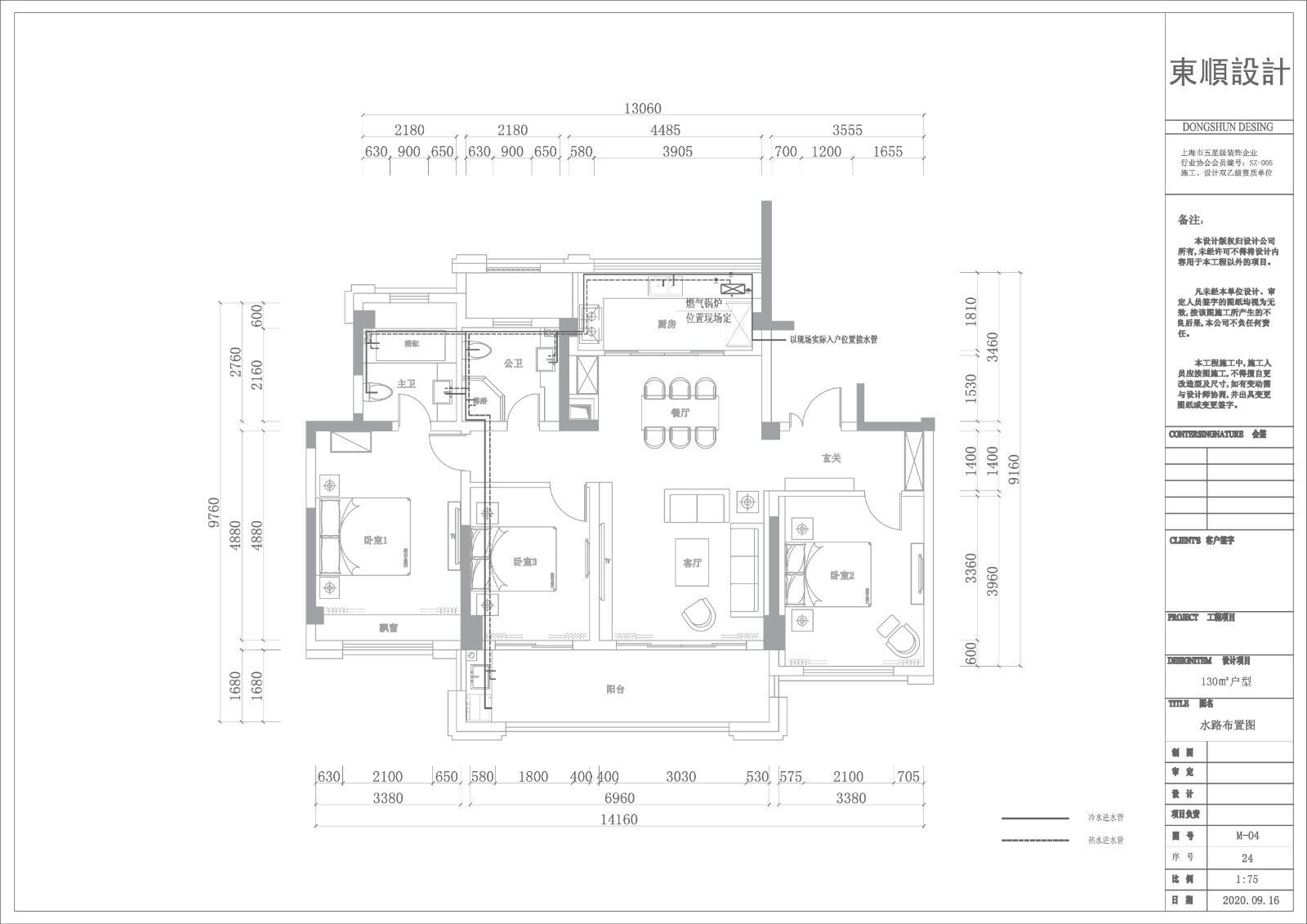
水路布置图
电暖示意图
拆改阶段
土建拆墙改造
水电阶段
水电隐蔽施工
泥木阶段
木作泥瓦施工
油漆阶段
墙面油漆施工
竣工阶段
家具软装安装
