工地
江阴市
水城花园115平样板房装饰工程项目
| 开工日期: | 竣工日期: | 2020-11-30 | |
| 面积: | 115㎡ | 预算: | 40万元 |
| 户型: | 三房 | 风格: | 现代风格 |
| 施工单位: | 上海东顺设计装饰有限公司 | ||
团队
杨骋
设计总监
李曼
首席设计师
白兆江
施工队长
施工情况
准备阶段
预算图纸准备
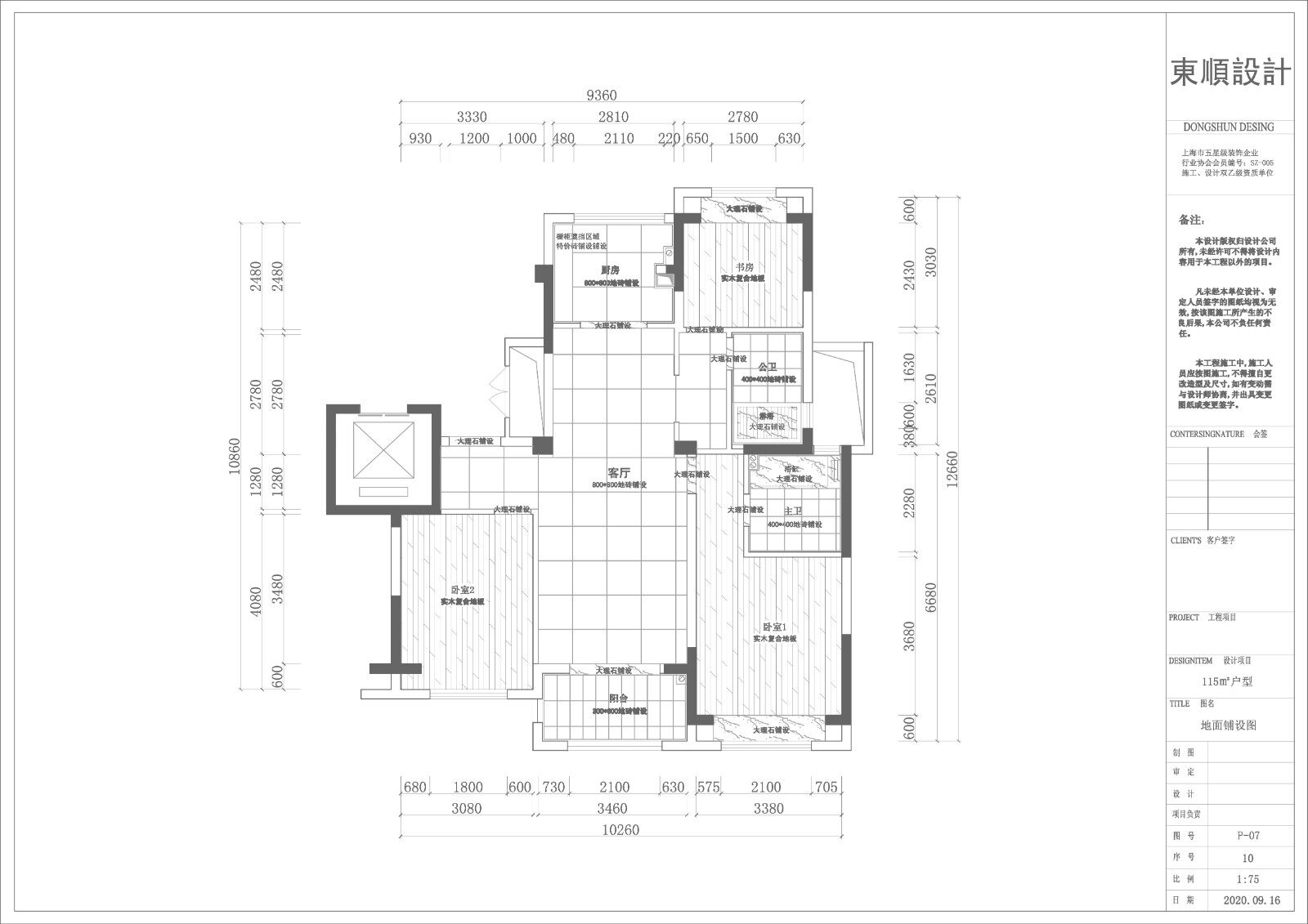
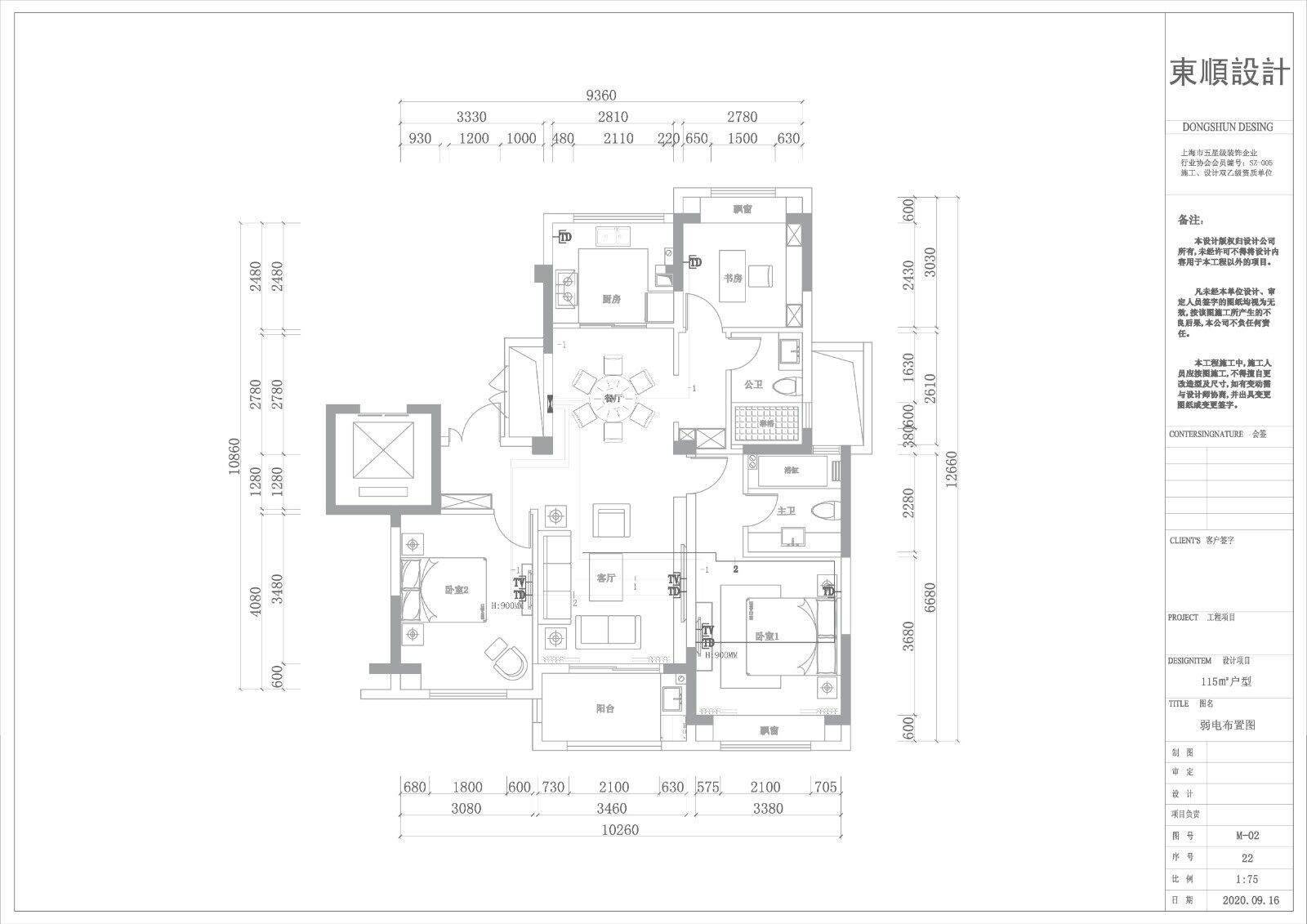
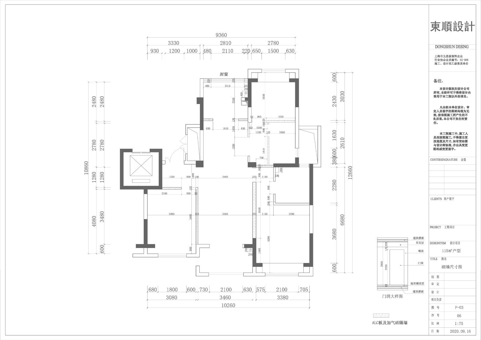
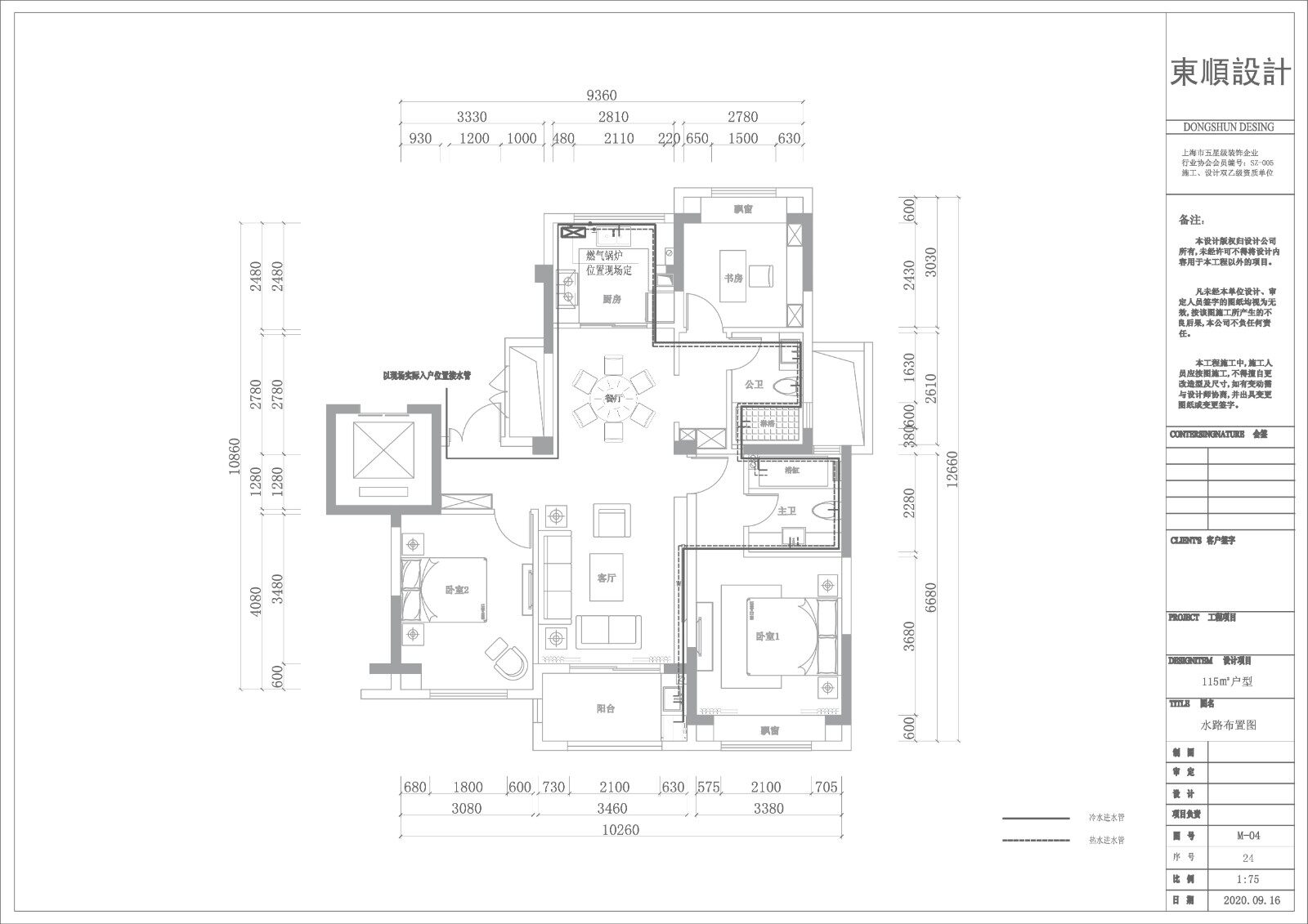
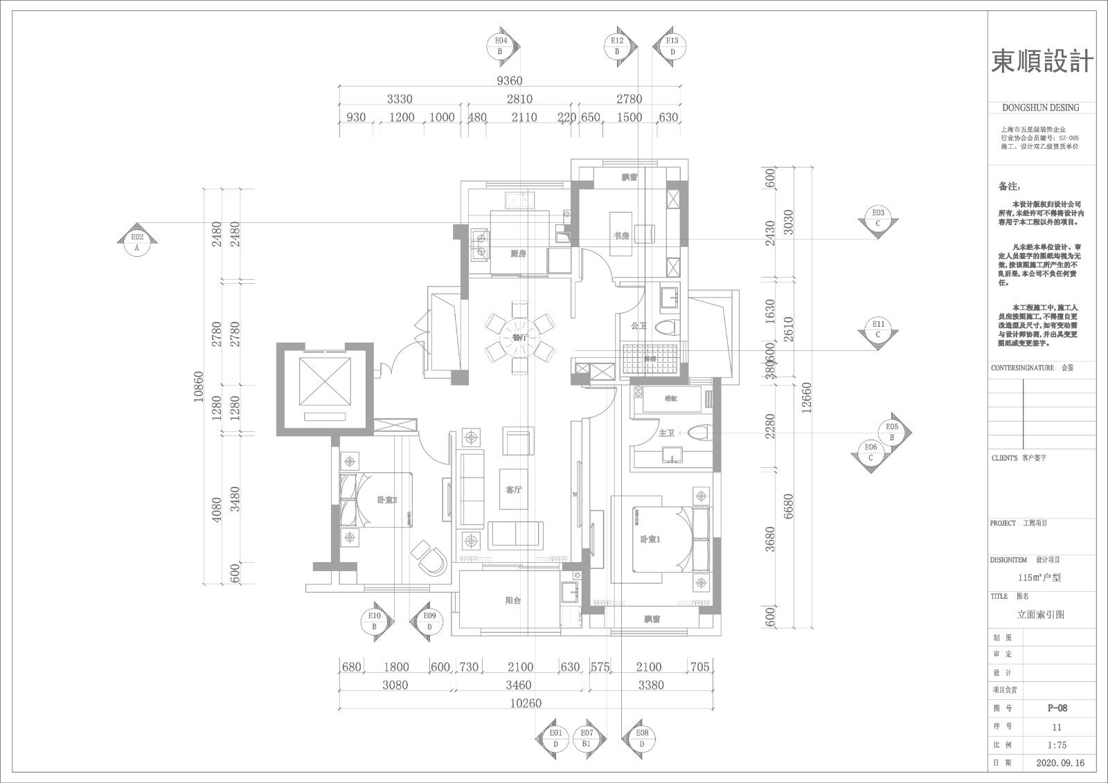
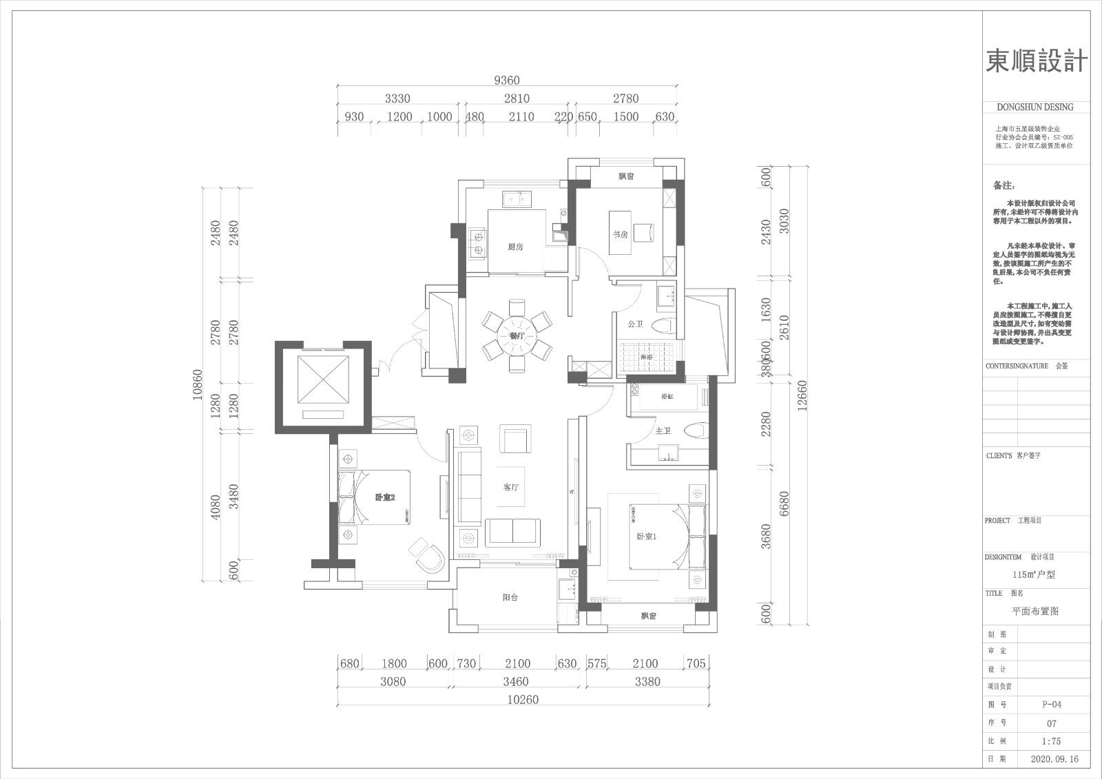
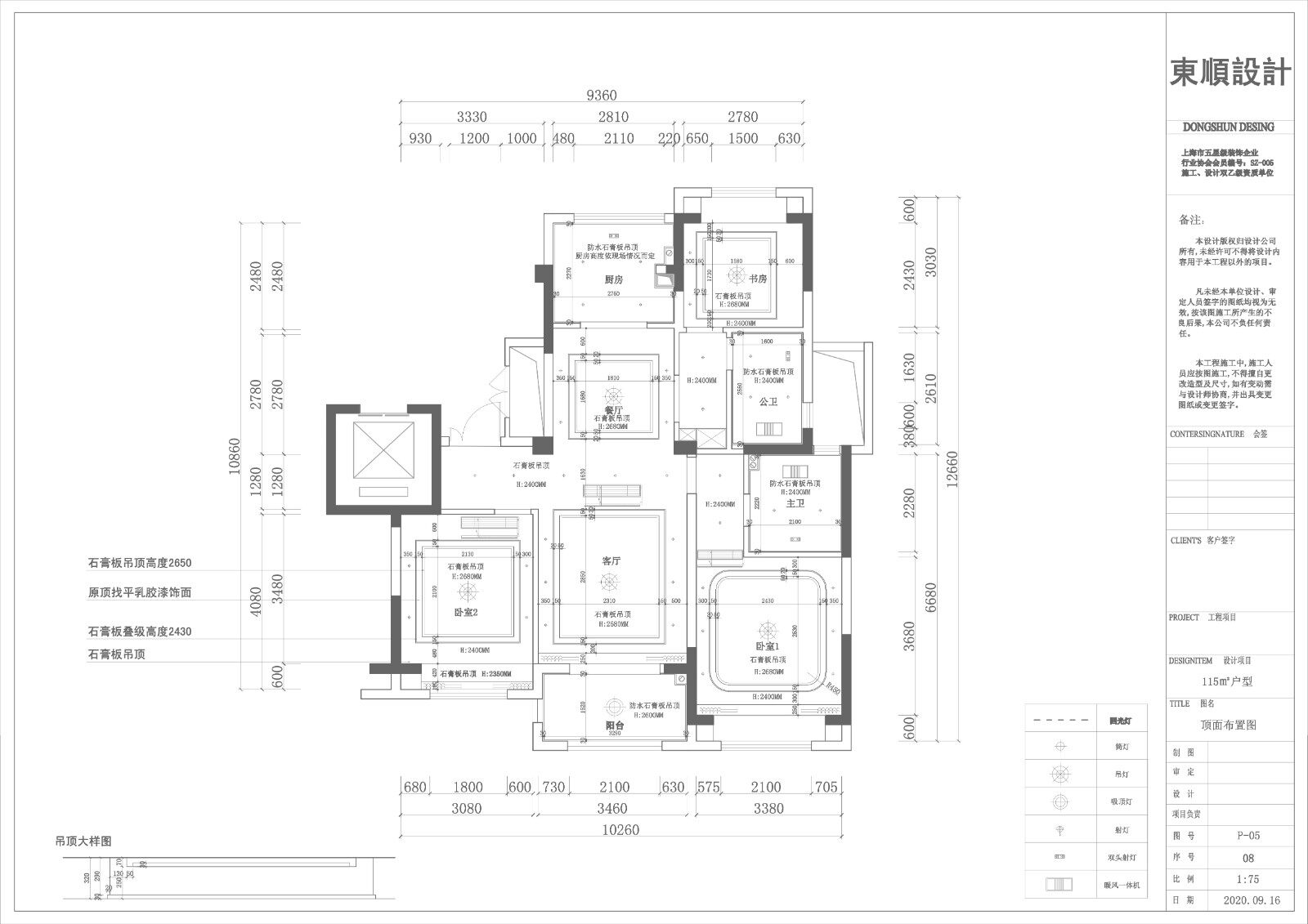
1:水城花园项目介绍,方案设计图集。项目全案设计图。图纸目录
原始结构图
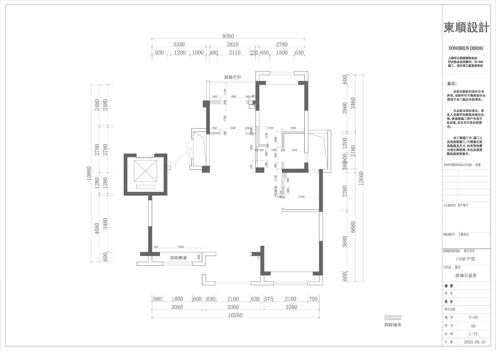
拆墙示意图
拆改阶段
土建拆墙改造
没有上传本阶段内容
水电阶段
水电隐蔽施工
没有上传本阶段内容
泥木阶段
木作泥瓦施工
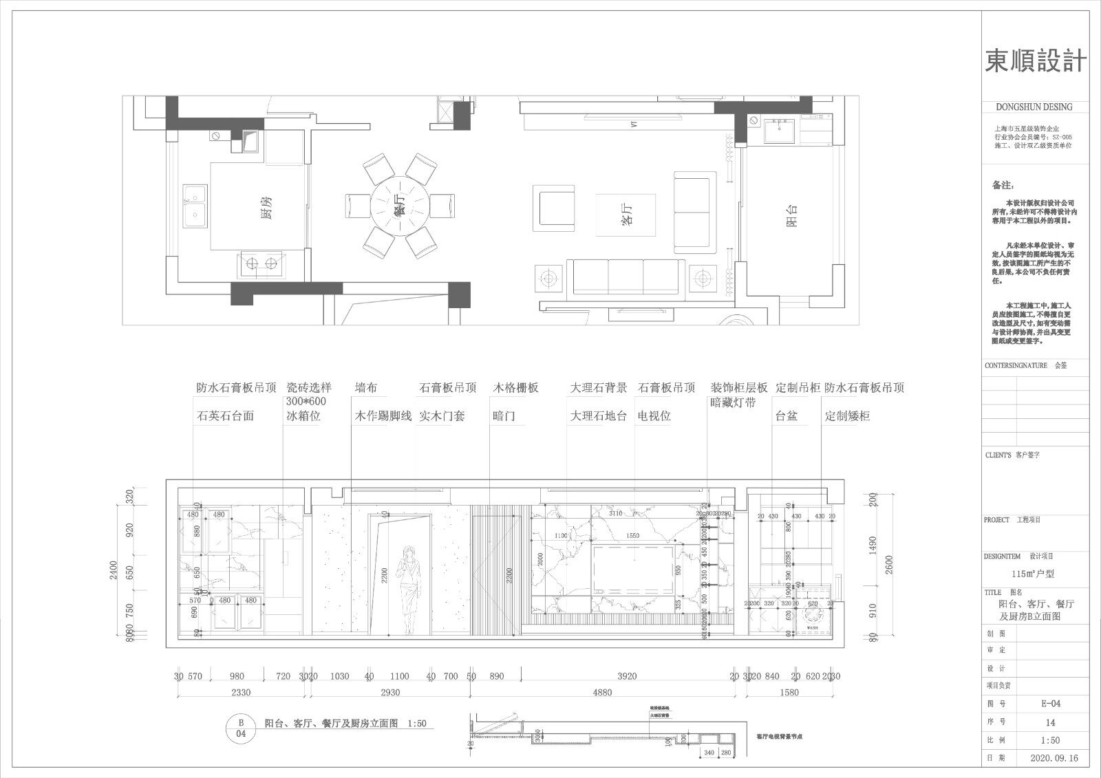
客餐厅效果图
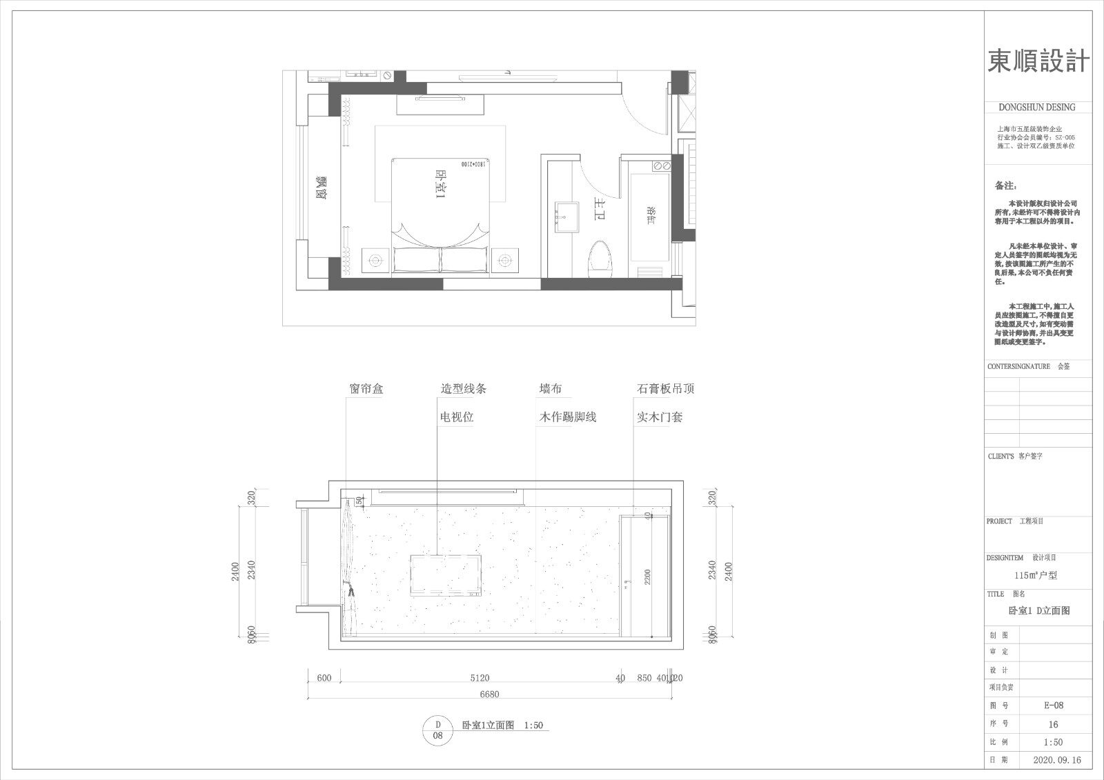
主卧效果图
次卧效果图
书房效果图
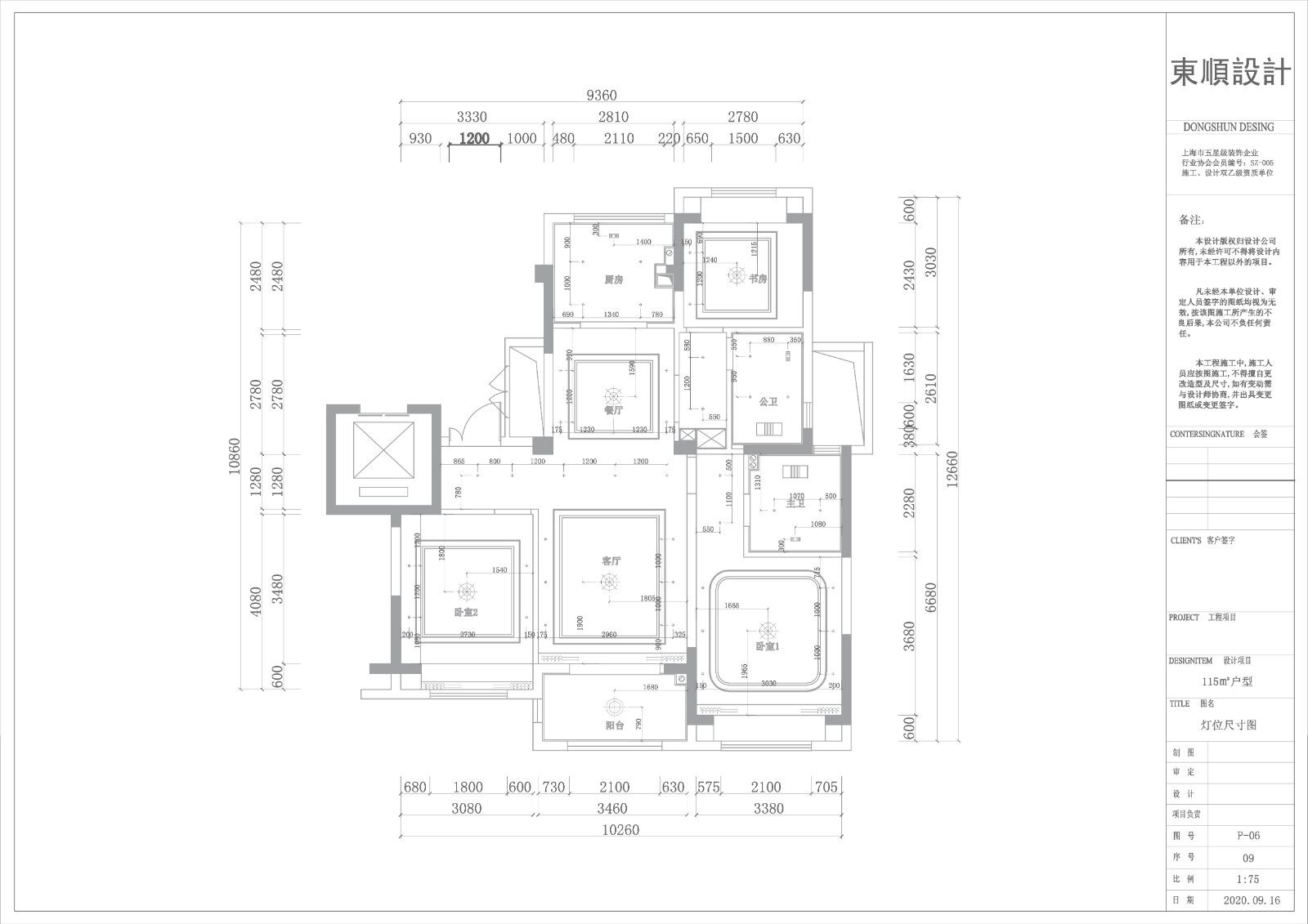
吊顶调试
施工标牌
施工人员在施工中
吊顶初步完工
造型部分进行中
让您看到里面的结构
看到石膏板原创颜色
泥工师傅认真工作中
吊顶结构加上固定板材可以安装窗帘使用
吊顶完毕
顶造型
龙骨架可以防火
轻钢龙骨
轻钢龙骨及固定板
轻钢龙骨
浴缸砌砖
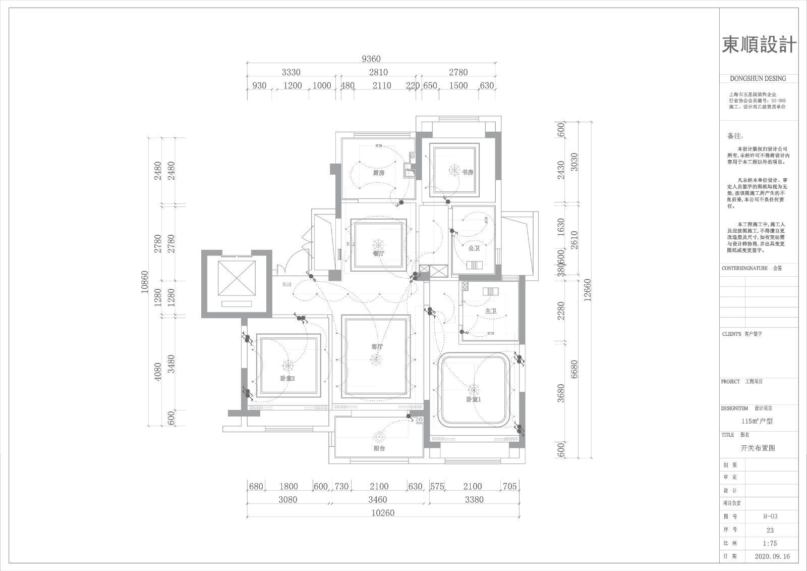
线路走向
油漆阶段
墙面油漆施工
没有上传本阶段内容
竣工阶段
家具软装安装
没有上传本阶段内容
