工地
黄浦区
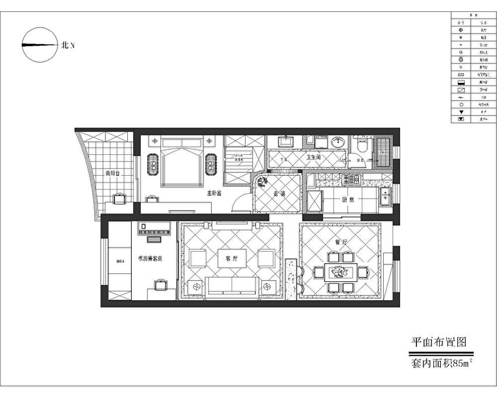
双钱公寓
| 开工日期: | 竣工日期: | ||
| 面积: | 83㎡ | 预算: | 13.52万元 |
| 户型: | 二房 | 风格: | 现代风格 |
| 施工单位: | 上海兰若装饰工程有限公司 | ||
团队
殷灵骏
设计总监
施工情况
准备阶段
预算图纸准备
拆改阶段
土建拆墙改造
没有上传本阶段内容
水电阶段
水电隐蔽施工
没有上传本阶段内容
泥木阶段
木作泥瓦施工
没有上传本阶段内容
油漆阶段
墙面油漆施工
没有上传本阶段内容
竣工阶段
家具软装安装
没有上传本阶段内容
