向心而生的慢生活
装修风格:
现代风格
房屋类型:
二房
面积:
80㎡
预算:
16万元
案例说明
对于一间房子而言最重要的是,当人们住进去后会怎样的生活,房间会随时间慢慢变化,这是意想不到又美妙的部分。所以设计不是要去改变他们的生活方式,而是优化他们的生活方式本身,让他们在自己已经熟悉的生活氛围里更好的、更轻松的生活;做到让家悠闲和无拘无束。
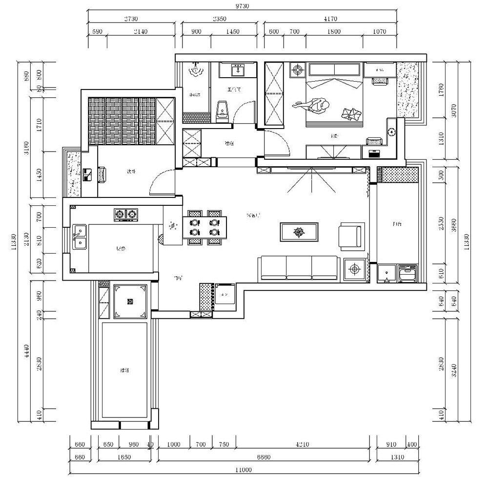
入户玄关:进门设计穿衣镜,一是为了更好的出门化妆方便,二是延伸空间的质感。壁柜设计可随手放置包包,钥匙等物品,为进门换鞋提供便利。
客厅:客厅电视背景以简单装饰壁柜加咖啡色墙漆为主,增加墙面的质感,从设计角度而言简单明了,又可以适当放置装饰物品,回家第一视觉,起到缓解疲劳的作用,在欣赏影视大片的同时,看看装饰物品,起到衔接和过度作用。
餐厅:餐厅采用吧台式设计,吃早餐很方便,切水果等问题也迎刃而解。敞开式厨房白色瓷砖,爱格板门板装饰,便于清理,也显干净整齐。餐桌旁边酒柜装饰,增添餐厅的功能需求。
卫生间:台盆舍弃传统式台盆的做法,采用上下双层抽屉式设计,既耐看,又可以储物,放置脸盆,毛巾等都方便,也不会显得呆板生硬。防雾镜,避免水汽过重不能照身,也是当下流行的镜面装饰。
主卧:墙面采用咖啡色墙体,转角式写字台,一是为了增加卧室温馨的氛围, 二是更好的为主人办公提供生活便利。吊顶采用当下流行的双眼皮式走边,简单耐看。
次卧:榻榻米式设计,既增加储物功能,又节省房间空间,小衣柜的设计不会因为生硬而显笨重。悬挂飘窗式写字台设计,一是为了办公更方便,同时也节省房间空间。学习应该是轻松的,而不是压抑的,所以悬挂飘窗式写字台设计符合这一理念。
阳台:洗烘一体式设计,是现代生活的一个必然,毕竟天气原因,偶尔会有部分衣物靠烘干和杀菌来维护衣物的质感,墙面白色瓷砖简单,透亮,让整个阳台更显大气。

设计总监