110㎡小三居
装修风格:
其他
房屋类型:
三房
面积:
110㎡
预算:
158000万元
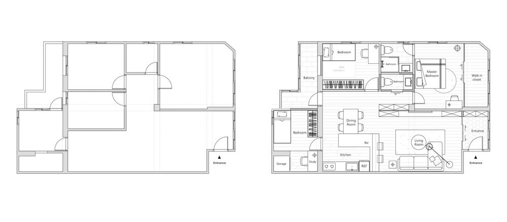
案例说明
本方案采用了现代简约风格,以白色调为主,黑色作为点缀,整体干净整洁,打通客厅和厨房,空间瞬间增大两倍。
入户玄关做大衣柜增加储物空间
开放式柜体能更好的展现出房主的收藏品。
客厅
打通厨房,空间更开阔。
L型橱柜,增大厨房使用空间。
卫生间使用转角淋浴房,更好的利用空间。

首选设计师