上海装潢网APP
为您的装修保驾护航
APP下载
后退
首页
APP
菜单
我要装修
我要投诉
我要监理
合同下载
报价下载
建材选购
装修公司
工地播报
新闻中心
个人中心
上海域墅装饰设计工程有限公司
店铺首页
主页
企业介绍
介绍
企业证书
荣誉
服务团队
团队
优惠活动
优惠
企业动态
动态
经典案例
案例
在建工地
工地
联系我们
联系
立即预约
预约
上海域墅装饰设计工程有限公司
网络监督单位(已过期)
口碑值:
85
浦东南路2250弄A座5层
联系方式
预约
预约提交成功
客服人员将会与您联系,请保持手机畅通
查询热线
400-118-8580
店铺首页
主页
企业介绍
介绍
企业证书
荣誉
服务团队
团队
优惠活动
优惠
企业动态
动态
经典案例
案例
在建工地
工地
联系我们
联系
立即预约
预约
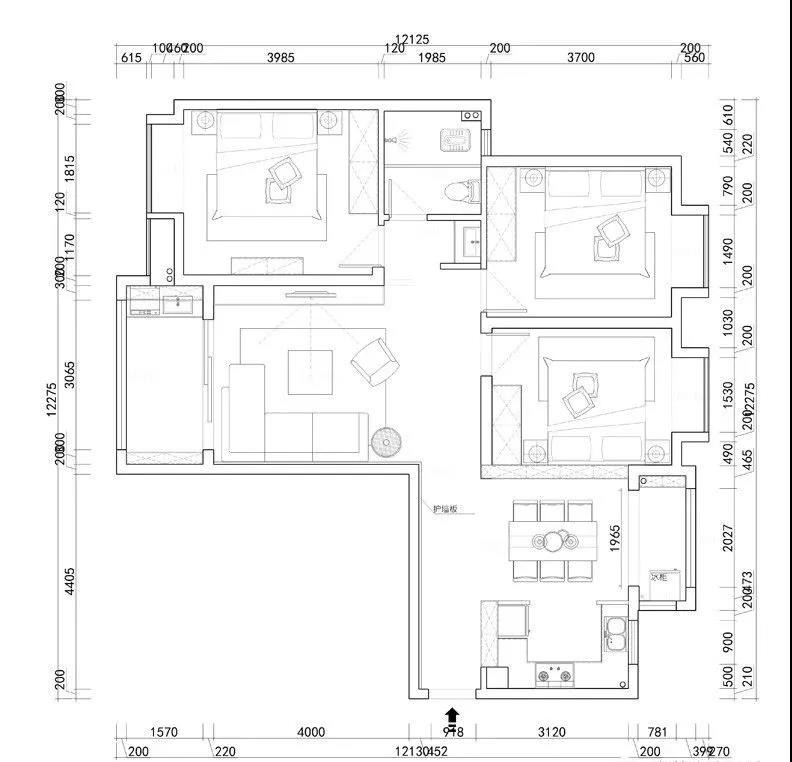
年轻人首选!115㎡现代轻奢风,玩出了不一样的高级感!
装修风格:
现代风格
房屋类型:
三房
面积:
115㎡
预算:
23万元
主任设计师
郭笑天
案例说明