假日时光-酷家乐效果图
装修风格:
混搭风格
房屋类型:
二房
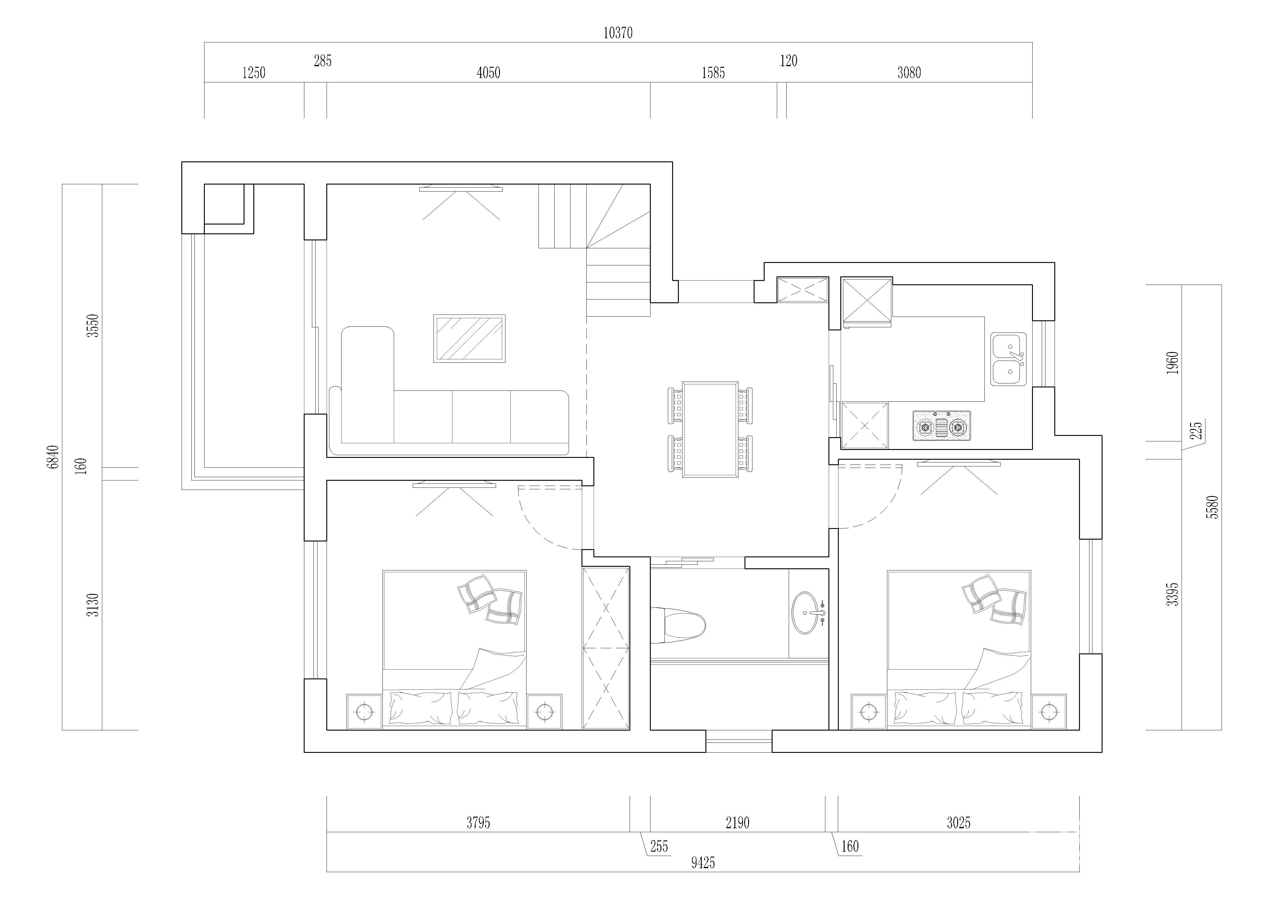
面积:
95㎡
预算:
9.2万元
案例说明
25516983.jpg - 明亮宽敞的空间里大胆运用色块堆积,运用简约、时尚元素体现整体风格。
微信图片_20200501143229.jpg - 卫生间配色简单,现代感十足。
微信图片_20200501143225.jpg - 充分利用了厨房的宽度,使用将会很方便。
微信图片_20200501143222.jpg - 客厅空间宽敞明亮,配色舒适温馨。
微信图片_20200501143218.jpg - 主卧室用色有点大胆,清新舒适。

设计师