同润圣塔路斯别墅欧式风格装修案例-平面布置图及效果图
装修风格:
欧式风格
房屋类型:
联排别墅
面积:
260㎡
预算:
60万元
案例说明
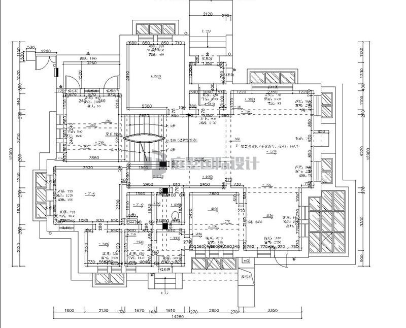
平面布置图1.jpg - 圣塔路斯别墅地下室原户型图
平面布置图2.jpg - 圣塔路斯别墅地下室平面布置图
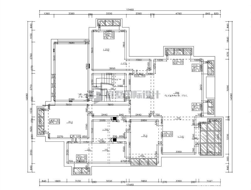
平面布置图3.jpg - 圣塔路斯别墅一层原户型结构图
平面布置图4.jpg - 圣塔路斯别墅一层平面布置图
圣塔路斯别墅门厅装修效果图.jpg - 圣塔路斯别墅门厅装修效果图
圣塔路斯别墅卫浴装修效果图.jpg - 圣塔路斯别墅卫浴装修效果图
圣塔路斯别墅地下室装修效果图.jpg - 圣塔路斯别墅地下室装修效果图
圣塔路斯别墅客厅装修效果图.jpg - 圣塔路斯别墅客厅装修效果图
圣塔路斯别墅餐厅装修效果图.jpg - 圣塔路斯别墅餐厅装修效果图
圣塔路斯别墅主卧装修效果图.jpg - 圣塔路斯别墅主卧装修效果图
圣塔路斯别墅公主房装修效果图.jpg - 圣塔路斯别墅公主房装修效果图

设计师