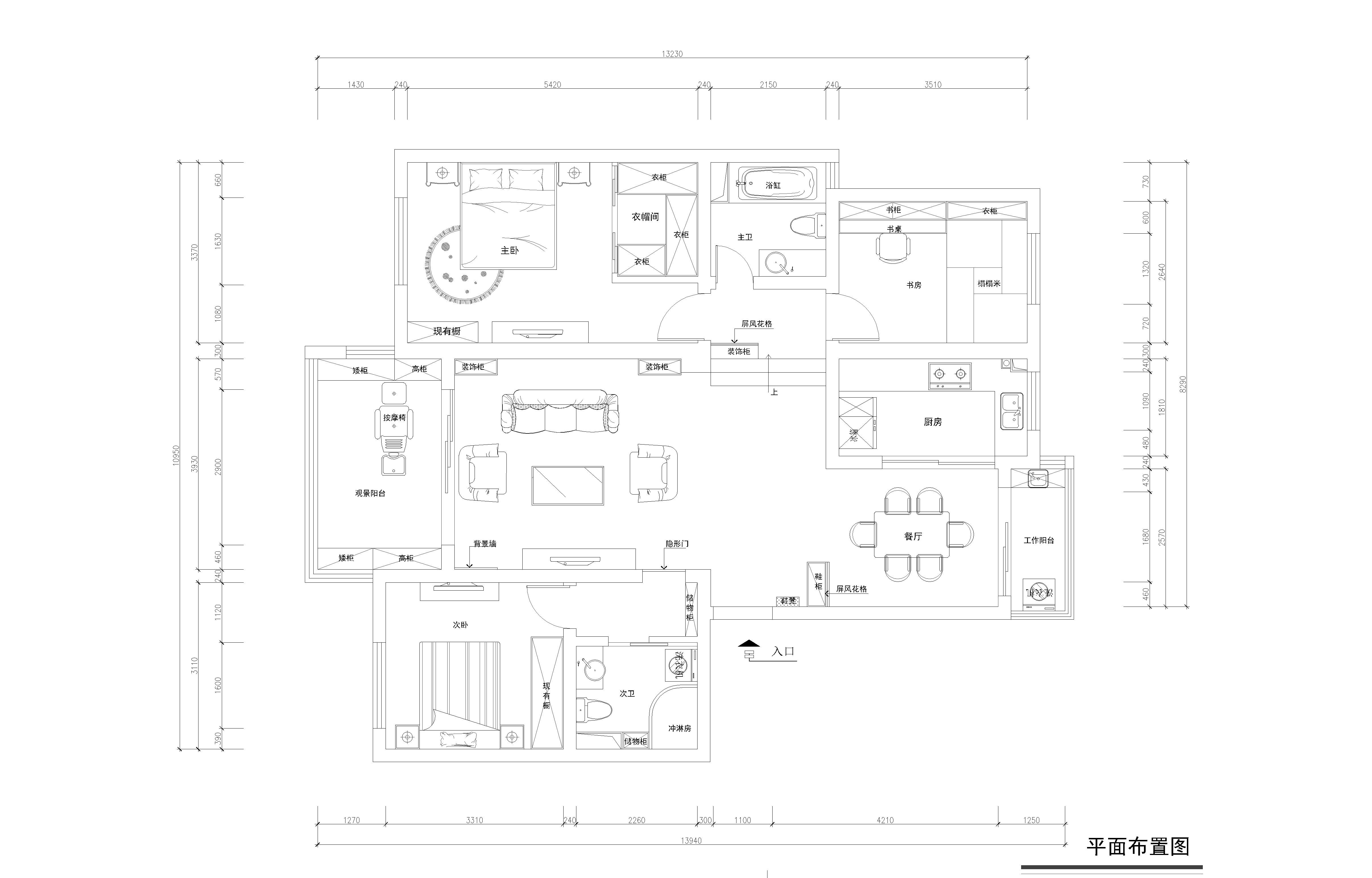
平面图.jpg - 房型图
原始图.jpg - 房型图
客厅 (1).jpg - 不管在时尚领域,还是在空间设计,它在简单的同时有着错综复杂的细节处理——通过对于纹理和材质微妙的处理而产生的效果。每个设置的互动形式、功能和情感元素,都展示了自身对于整个空间特性的诠释。整个空间有着自己独一无二的特征与定义,更透露出一种对空间感的不妥协。 虽然只是一个典型的三室两厅的住宅,在这个房子中首先设计的是空间的实用性和灵活性,根据居住空间相互间的功能关系组合而成。空间主要以米色系作为主色调,香槟金、孔雀绿作为点缀色,打破了高级灰的沉静,扩展了空间的视觉张力,使得空间变得更加鲜活与生动。一深一浅的明显色泽差异也使得空间更具层次感。
客厅 (2).jpg - 不管在时尚领域,还是在空间设计,它在简单的同时有着错综复杂的细节处理——通过对于纹理和材质微妙的处理而产生的效果。每个设置的互动形式、功能和情感元素,都展示了自身对于整个空间特性的诠释。整个空间有着自己独一无二的特征与定义,更透露出一种对空间感的不妥协。 虽然只是一个典型的三室两厅的住宅,在这个房子中首先设计的是空间的实用性和灵活性,根据居住空间相互间的功能关系组合而成。空间主要以米色系作为主色调,香槟金、孔雀绿作为点缀色,打破了高级灰的沉静,扩展了空间的视觉张力,使得空间变得更加鲜活与生动。一深一浅的明显色泽差异也使得空间更具层次感。
书房.jpg - 不管在时尚领域,还是在空间设计,它在简单的同时有着错综复杂的细节处理——通过对于纹理和材质微妙的处理而产生的效果。每个设置的互动形式、功能和情感元素,都展示了自身对于整个空间特性的诠释。整个空间有着自己独一无二的特征与定义,更透露出一种对空间感的不妥协。 虽然只是一个典型的三室两厅的住宅,在这个房子中首先设计的是空间的实用性和灵活性,根据居住空间相互间的功能关系组合而成。空间主要以米色系作为主色调,香槟金、孔雀绿作为点缀色,打破了高级灰的沉静,扩展了空间的视觉张力,使得空间变得更加鲜活与生动。一深一浅的明显色泽差异也使得空间更具层次感。
卧室.jpg - 不管在时尚领域,还是在空间设计,它在简单的同时有着错综复杂的细节处理——通过对于纹理和材质微妙的处理而产生的效果。每个设置的互动形式、功能和情感元素,都展示了自身对于整个空间特性的诠释。整个空间有着自己独一无二的特征与定义,更透露出一种对空间感的不妥协。 虽然只是一个典型的三室两厅的住宅,在这个房子中首先设计的是空间的实用性和灵活性,根据居住空间相互间的功能关系组合而成。空间主要以米色系作为主色调,香槟金、孔雀绿作为点缀色,打破了高级灰的沉静,扩展了空间的视觉张力,使得空间变得更加鲜活与生动。一深一浅的明显色泽差异也使得空间更具层次感。

资深设计师