崇明岛华贸东滩花园240平别墅设计方案-效果图
装修风格:
现代风格
房屋类型:
联排别墅
面积:
240㎡
预算:
70万元
案例说明
阁楼 - 华贸东滩花园别墅装修设计案例,上海腾龙别墅设计
卧室 - 华贸东滩花园别墅装修设计案例,上海腾龙别墅设计
卧室 - 华贸东滩花园别墅装修设计案例,上海腾龙别墅设计
卧室 - 华贸东滩花园别墅装修设计案例,上海腾龙别墅设计
书房 - 华贸东滩花园别墅装修设计案例,上海腾龙别墅设计
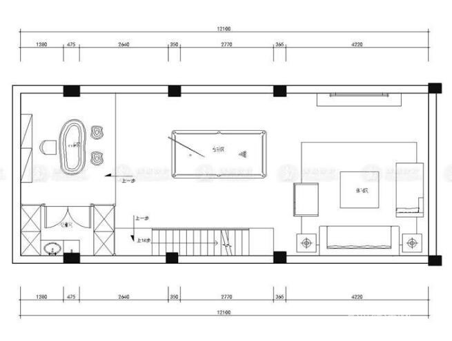
户型图 - 华贸东滩花园别墅装修设计案例,上海腾龙别墅设计

主任设计师