浦江坤庭别墅装修现代风格设计-效果图
装修风格:
现代风格
房屋类型:
联排别墅
面积:
310㎡
预算:
78万元
案例说明
客厅 - 浦江坤庭别墅装修现代风格设计,上海腾龙别墅设计师
客厅 - 浦江坤庭别墅装修现代风格设计,上海腾龙别墅设计师
卧室 - 浦江坤庭别墅装修现代风格设计,上海腾龙别墅设计师
餐厅 - 浦江坤庭别墅装修现代风格设计,上海腾龙别墅设计师
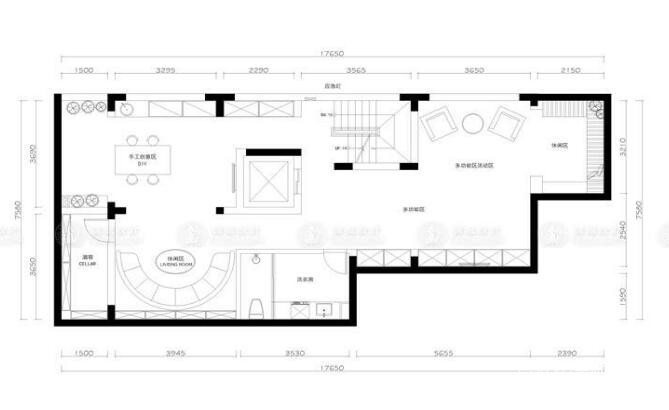
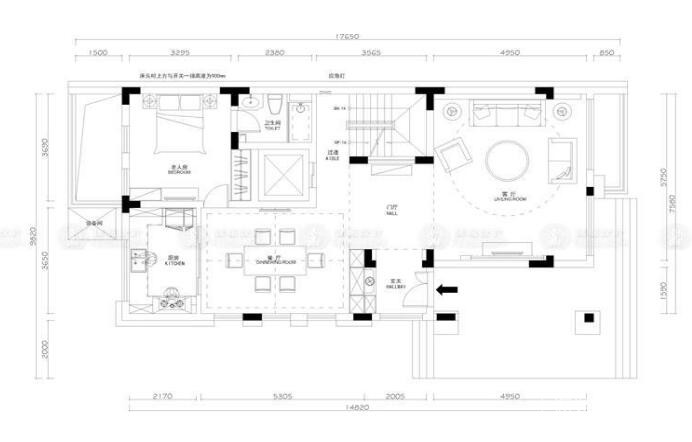
户型图 - 浦江坤庭别墅装修现代风格设计,上海腾龙别墅设计师
户型图 - 浦江坤庭别墅装修现代风格设计,上海腾龙别墅设计师
户型图 - 浦江坤庭别墅装修现代风格设计,上海腾龙别墅设计师
地下室 - 浦江坤庭别墅装修现代风格设计,上海腾龙别墅设计师

主任设计师