崇明岛昱墅别墅装修美式风格方案-效果图
装修风格:
美式风格
房屋类型:
联排别墅
面积:
316㎡
预算:
80万元
案例说明
餐厅设计 - 厨房在美国人眼中一般是开敞的(由于其饮食烹饪习惯),同时需要有一个便餐台在厨房的一隅,还要具备功能强大又简单耐用的厨具设备,如水槽下的残渣粉碎机,烤箱等。需要有容纳双开门冰箱的宽敞位置和足够的操作台面。在装饰上也有很多讲究,如喜好仿古面的墙砖、橱具门板喜好用实木门扇或是白色模压门扇仿木纹色。另外,厨房的窗也喜欢配置窗帘等。
客厅设计 - 客厅作为待客区域,一般要求简洁明快,同时装修较其它空间要更明快光鲜,通常使用大量的石材和木饰面装饰;美国人喜欢有历史感的东西,这不仅反映在软装摆件上对仿古艺术品的喜爱,同时也反映在装修上对各种仿古墙地砖、石材的偏爱和对各种仿旧工艺的追求上。总体而言,美式田园风格的客厅是宽敞而富有历史气息的。
客厅设计 - 家庭室作为家庭成员休息交流的中心,属私密性很强的空间,一般设于餐厅旁,并有电视机,同时沙发和座椅选择轻松明快的式样,室内绿化也较为丰富,装饰画较多。
餐厅设计 - 美式家居风格的这些元素也正好迎合了时下的文化资产者对生活方式的需求,即:有文化感、有贵气感,还不能缺乏自在感与情调感。
卧室设计 - 美式家居的卧室布置较为温馨,作为主人的私密空间,主要以功能性和实用舒适为考虑的重点,一般的卧室不设顶灯,多用温馨柔软的成套布艺来装点,同时在软装和用色上非常统一。现代美式多用非炫目灯光,且尽量做到只见光不见灯的效果。
卧室设计 - 美式家居的卧室布置较为温馨,作为主人的私密空间,主要以功能性和实用舒适为考虑的重点,一般的卧室不设顶灯,多用温馨柔软的成套布艺来装点,同时在软装和用色上非常统一。现代美式多用非炫目灯光,且尽量做到只见光不见灯的效果。
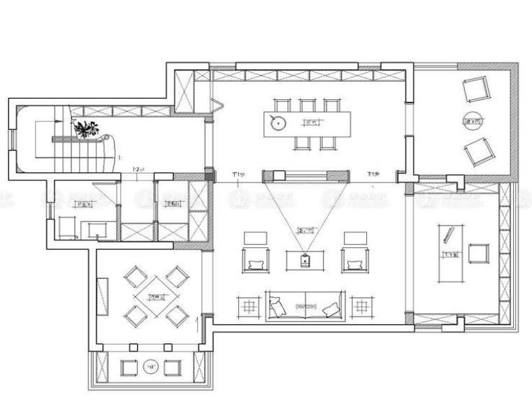
户型图 - 平面布局方案
户型图 - 平面布局方案

主任设计师