御沁园358平联排别墅现代风格设计-效果图
装修风格:
现代风格
房屋类型:
联排别墅
面积:
358㎡
预算:
90万元
案例说明
地下室设计 - 装修的简约一定要从务实出发,切忌盲目跟风而不考虑其他的因素。简约的背后也体现一种现代“消费观”。即注重生活品位、注重健康时尚、注重合理节约科学消费。其实,有些装修的“风格”是完全没有必要的,而且要的越多,带来的“隐患”也越多
客厅设计 - 简约不等于简单,它是经过深思熟虑后经过创新得出的设计和思路的延展,不是简单的“堆砌”和平淡的“摆放”,不像有些设计师粗浅的理解的“直白”,比如床头背景设计有些简约到只有一个十字挂件,但是它凝结着设计师的独具匠心,既美观又实用。
客厅设计 - 家庭的简约不只是说装修,还反映在家居配饰上的简约,比如不大的屋子,就没有必要为了显得“阔绰”而购置体积较大的物品,相反应该就生活所必需的东西购买,而且以不占面积、折叠、多功能等性能为主
卧室设计 - 在家具配置上,白亮光系列家具,独特的光泽使家具倍感时尚,具有舒适与美观并存的享受。在配饰上,延续了黑白灰的主色调,以简洁的造型、完美的细节,营造出时尚前卫的感觉。
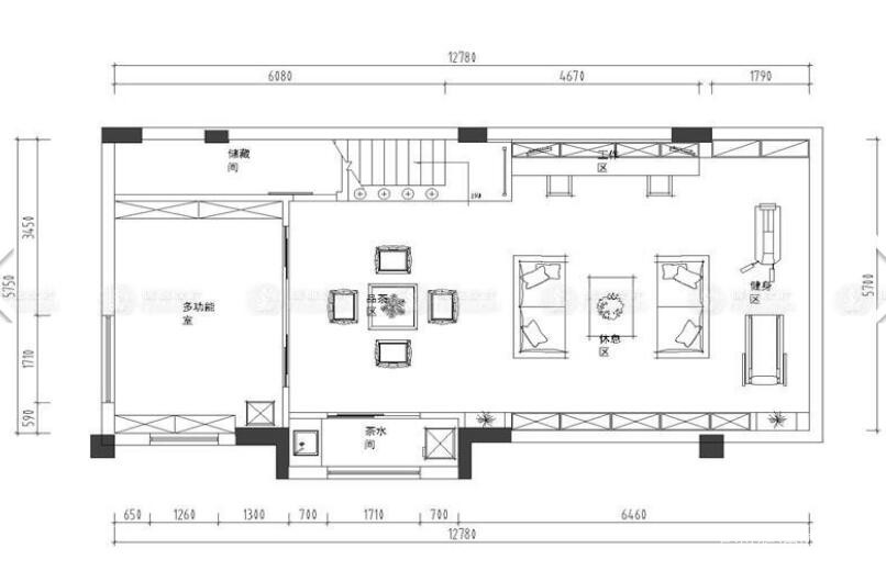
户型图 - 平面布局图

主任设计师