绿岛阳光苑318平别墅新中式-效果图
装修风格:
中式风格
房屋类型:
联排别墅
面积:
318㎡
预算:
90万元
案例说明
客厅 - 上海市崇明县东引路28弄8号(绿岛阳光苑)别墅装修新中式风格设计方案展示,上海腾龙别墅设计师祝炯作品,欢迎品鉴
客厅 - 上海市崇明县东引路28弄8号(绿岛阳光苑)别墅装修新中式风格设计方案展示,上海腾龙别墅设计师祝炯作品,欢迎品鉴
书房 - 上海市崇明县东引路28弄8号(绿岛阳光苑)别墅装修新中式风格设计方案展示,上海腾龙别墅设计师祝炯作品,欢迎品鉴
卧室 - 上海市崇明县东引路28弄8号(绿岛阳光苑)别墅装修新中式风格设计方案展示,上海腾龙别墅设计师祝炯作品,欢迎品鉴
地下室 - 上海市崇明县东引路28弄8号(绿岛阳光苑)别墅装修新中式风格设计方案展示,上海腾龙别墅设计师祝炯作品,欢迎品鉴
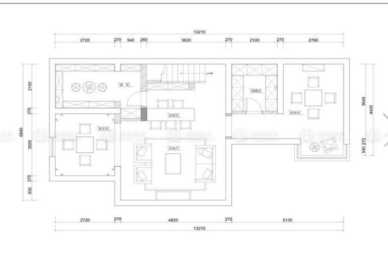
户型1 - 上海市崇明县东引路28弄8号(绿岛阳光苑)别墅装修新中式风格设计方案展示,上海腾龙别墅设计师祝炯作品,欢迎品鉴
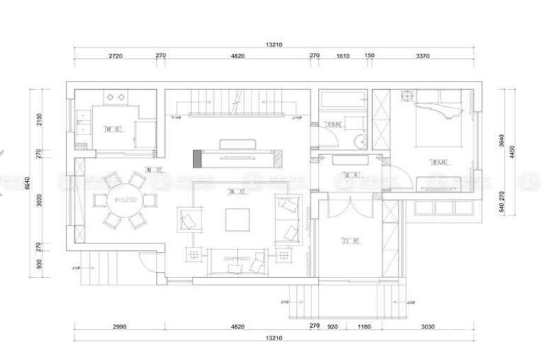
户型图2 - 上海市崇明县东引路28弄8号(绿岛阳光苑)别墅装修新中式风格设计方案展示,上海腾龙别墅设计师祝炯作品,欢迎品鉴

主任设计师