浦江坤庭388平别墅美式风格设计-效果图
装修风格:
美式风格
房屋类型:
双拼别墅
面积:
388㎡
预算:
76万元
案例说明
餐厅 - 浦江坤庭别墅装修简美风格设计方案展示,上海腾龙别墅设计师祝炯作品,欢迎品鉴
客厅 - 浦江坤庭别墅装修简美风格设计方案展示,上海腾龙别墅设计师祝炯作品,欢迎品鉴
客厅 - 浦江坤庭别墅装修简美风格设计方案展示,上海腾龙别墅设计师祝炯作品,欢迎品鉴
书房 - 浦江坤庭别墅装修简美风格设计方案展示,上海腾龙别墅设计师祝炯作品,欢迎品鉴
卧室 - 浦江坤庭别墅装修简美风格设计方案展示,上海腾龙别墅设计师祝炯作品,欢迎品鉴
客厅 - 浦江坤庭别墅装修简美风格设计方案展示,上海腾龙别墅设计师祝炯作品,欢迎品鉴
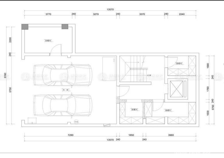
户型1 - 浦江坤庭别墅装修简美风格设计方案展示,上海腾龙别墅设计师祝炯作品,欢迎品鉴
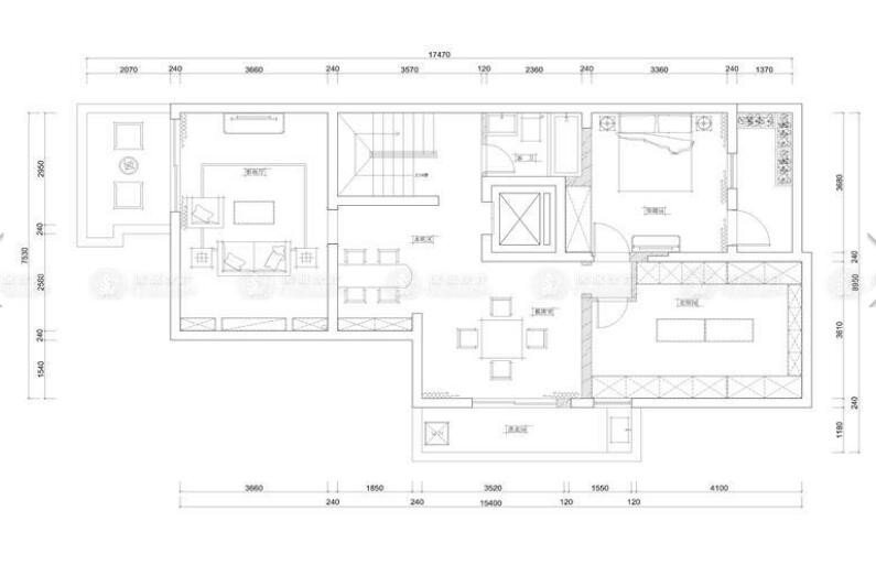
户型2 - 浦江坤庭别墅装修简美风格设计方案展示,上海腾龙别墅设计师祝炯作品,欢迎品鉴
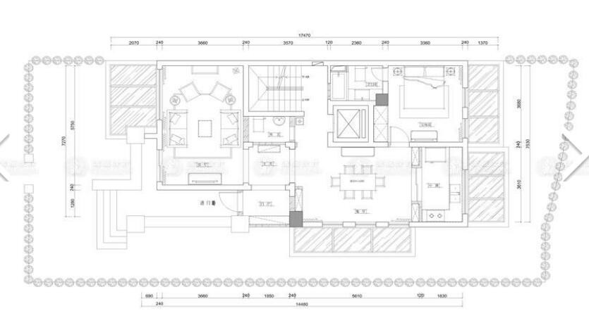
户型3 - 浦江坤庭别墅装修简美风格设计方案展示,上海腾龙别墅设计师祝炯作品,欢迎品鉴

主任设计师