上海装潢网APP
为您的装修保驾护航
APP下载
上海东顺设计装饰有限公司
上海东顺设计装饰有限公司
网络监督单位
质保金: 20万
口碑值: 30472
浦东新区盛苑路800弄
4个门店
预约
预约提交成功
客服人员将会与您联系,请保持手机畅通
查询热线400-118-8580
  • 店铺首页 主页
  • 企业介绍 介绍
  • 企业证书 荣誉
  • 服务团队 团队
  • 优惠活动 优惠
  • 企业动态 动态
  • 经典案例 案例
  • 工地播报 工地
  • 联系我们 联系
  • 立即预约 预约
  • 安亭大名城-效果图施工图
    装修风格:
    欧式风格
    房屋类型:
    三房
    面积:
    80㎡
    预算:
    7万元
    案例说明

    客厅 - 客厅效果图,整体风格为欧式风格,墙面以护墙板为主,地面用爵士白和黑金花拼花。

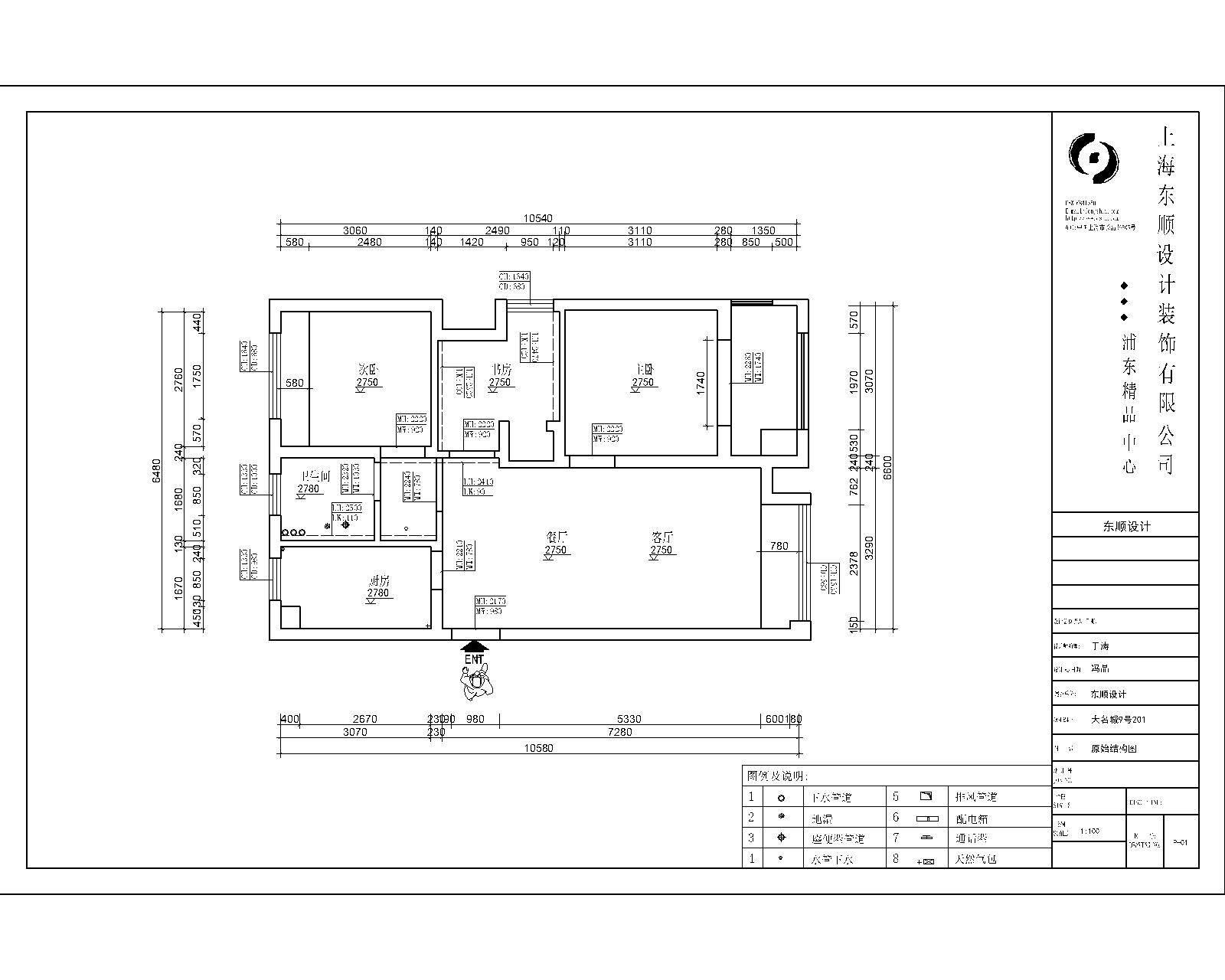
    原始结构图 - 原始结构图,户型为两室两厅一厨一卫。

    地面铺装图

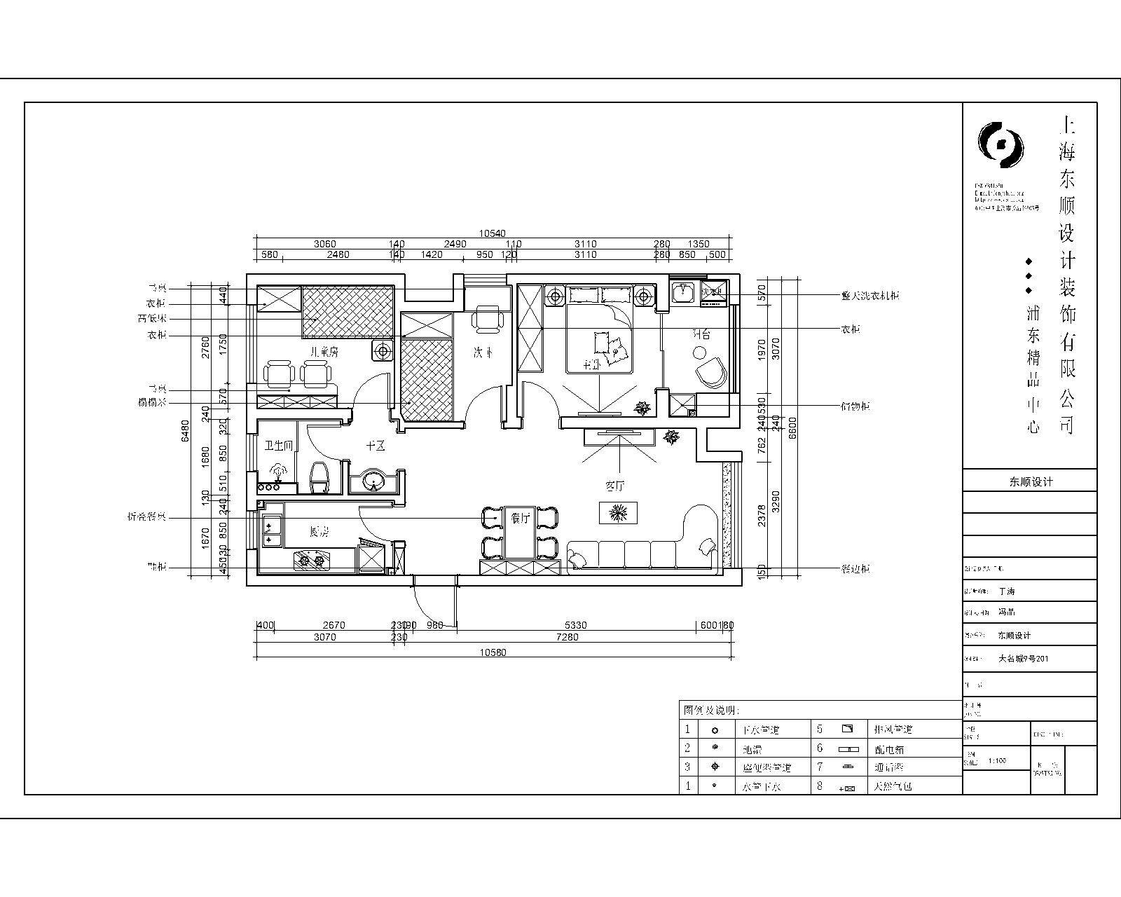
    平面布置图

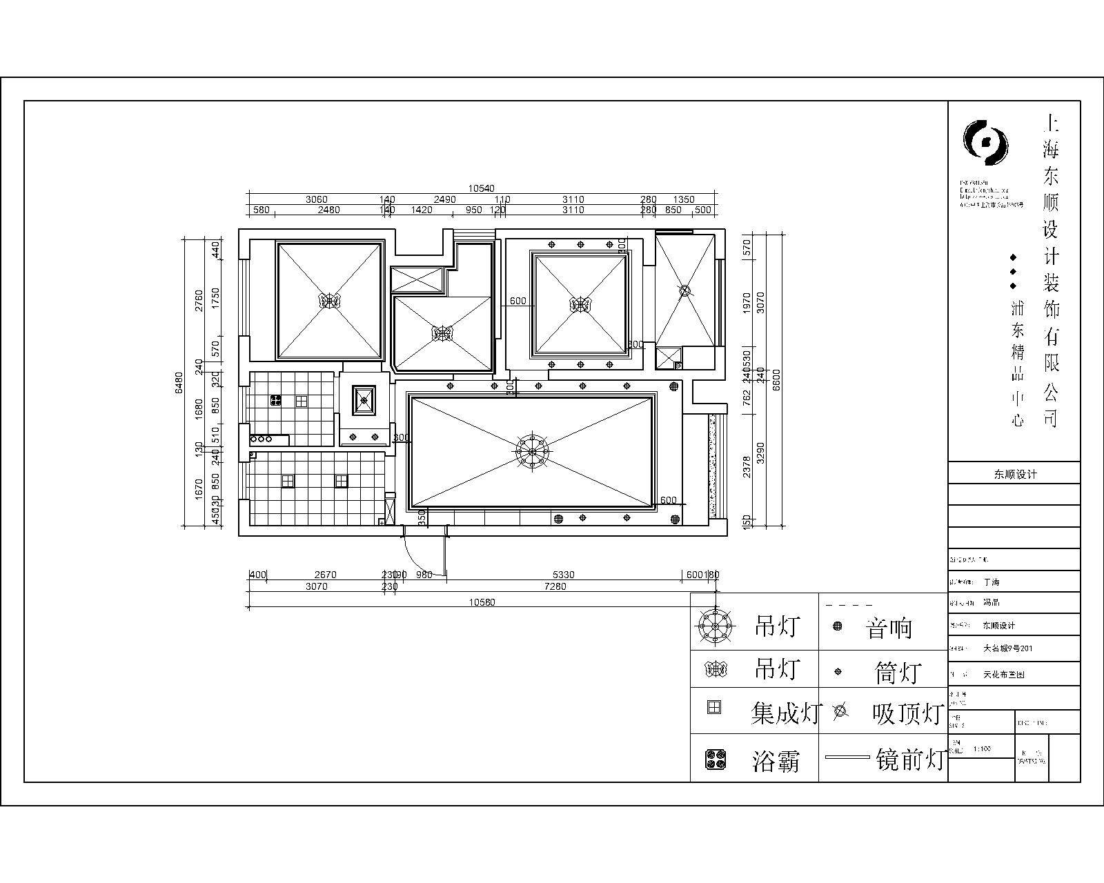
    天花图

    次卧

    卧室1