上海装潢网APP
为您的装修保驾护航
APP下载
后退
首页
APP
菜单
我要装修
我要投诉
我要监理
合同下载
报价下载
建材选购
装修公司
工地播报
新闻中心
个人中心
上海鸿赋装饰设计工程有限公司
店铺首页
主页
企业介绍
介绍
企业证书
荣誉
服务团队
团队
优惠活动
优惠
企业动态
动态
经典案例
案例
在建工地
工地
联系我们
联系
立即预约
预约
上海鸿赋装饰设计工程有限公司
普通会员
口碑值:
0
联系方式
预约
预约提交成功
客服人员将会与您联系,请保持手机畅通
查询热线
400-118-8580
店铺首页
主页
企业介绍
介绍
企业证书
荣誉
服务团队
团队
优惠活动
优惠
企业动态
动态
经典案例
案例
在建工地
工地
联系我们
联系
立即预约
预约
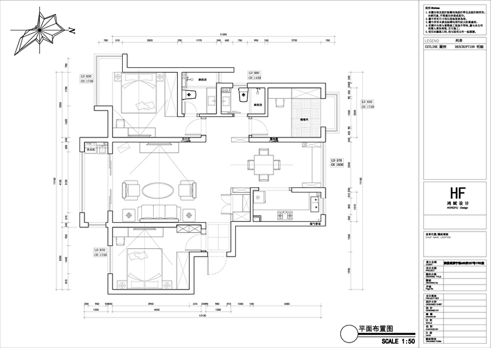
润景苑-平面及效果图
装修风格:
现代风格
房屋类型:
二房
面积:
123㎡
预算:
8万元
设计师
袁学成
案例说明
原始平面图
平面布置图
效果图